设计公司:7KK设计
户型二室
使用面积89平米
房屋位置上海 徐汇
装修花费9万元
FOREWORD
说在前面
给空间留白, 给生活留白,给心灵留白, 这才是极简艺术。 业主说以前比较喜欢看起来花哨的东西,但是随着心境的变化,更喜欢简单朴素。本案例也是根据业主的需求打造极简风,去掉一切纷扰繁杂的东西,上海装修设计以温暖原木色和大面积白色为基调加上玻璃材质穿插,适当的留白,让空间得到更好的释放,打造家的极简艺术。
ROOM SHOW
空间展示
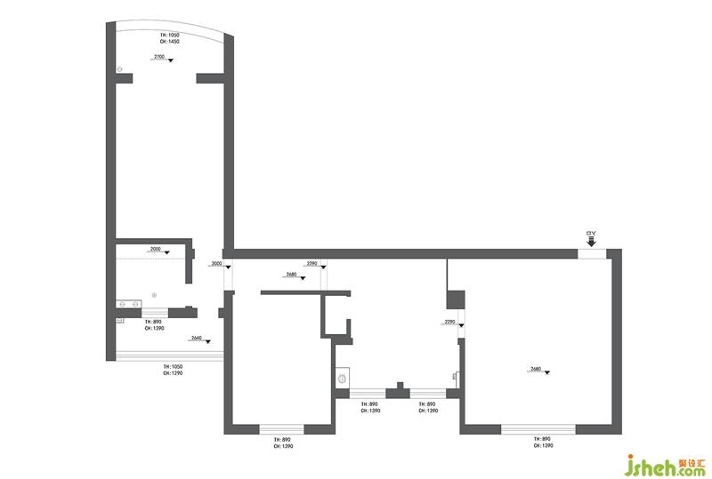
- 户型图 -
原始户型图
1、客餐厅一起,空间虽然方正,面积比较小。
2、厨房封闭式空间很小,整个过道比较浪费,而且动线很绕。过道采光也比较差。
3、主卧卫生间比较小卧室比较长,卫生间采光很差。
业主需求
1、整体设计简约为主,收纳要多干净整洁,所有的东西尽量不要展示在外面。 2、需要开放式餐厅大的操作台面。
3、需要两个卫生间,人多方便使用。
4、要有办公的空间。
5、主卫要浴缸淋浴功能齐全。
改造后户型图
1、鞋柜收纳柜都定制到顶的,满足业主超多收纳功能。
2、利用玻璃隔断将餐客厅区分开,利用客厅沙发后面空间作为办公空间,玻璃隔断可独立可开放。
3、厨房开放式,视野感更宽敞开阔,吧台设计增加操作台面,下柜增加储物功能。
4、原有厨房根据窗户一份为二,一侧是开放式厨房,一侧设计客卫,客卫采用长虹玻璃移门,美观同时又不影响采光,通透性,过道也不会觉得压抑。
5、缩小儿童房空间,充分利用走廊两侧空间做衣帽间,收纳超强大。
6、主卧卫生间独立设计,三分离式,容纳淋浴浴缸,马桶,台盆空间。满足业主需求。
7、主卧休息空间与卫生间利用雾化玻璃做隔断,时尚大气,增加整体空间通透性,私密性。
- 客厅 -
进门定制一整排顶天立地的白色鞋柜收纳柜+装饰柜,镂空的设计让柜体不会显得厚重,拥有通透性,既美观又实用。 餐客厅中间采用玻璃做隔断,可封闭可独立的设计让空间有了弹性。餐厅墙面顶部都以白色为主,地面采用白色纹理地砖拼接,原木色餐桌椅搭配,淡雅舒适,满足业主希望在繁忙的一天工作后,回到家中去找寻一份宁静与温暖的诉求,让业主回归家、回归生活、回归自然。
原本用玻璃隔断客厅空间,是在沙发后面留有办公的空间,靠墙放置办公桌椅,因为拍摄的时候业主还没有买到,所以就把沙发后移靠墙放置。这样办公的时候想要独立的空间,就把玻璃拉上。 客厅面积相对比较小,地面浅色地板铺贴,搭配丝绒沙发,顶部采用灰镜玻璃,这样空间有了延伸性,通透而有质感。双层灰白窗帘搭配,留下白色落地窗纱,起到增大空间之感,使得整个环境变得十分清晰自然,同时也有一种如沐清风之感,让原本单调的客厅变得简约大气。
小而精致的客厅,电视柜上柜采用白色柜体,下面采用黑色抽屉,中间镂空设计暂时留白,没有放电视,摆放主人喜爱的手工艺品。
- 餐厅 -


拉上玻璃移门,彩色的块状玻璃让原本质朴,简约的空间瞬间多了份不一样的色彩,让原本单调的生活也变得多姿多彩,透过若隐若现的玻璃让人产生无限遐想上海装修设计,幻想玻璃后面的世界。即使拉上玻璃也不影响餐厅采光,还是一样干净、清爽,明亮,同时也让整体空间富有不一样的意境。功能划分也比较清晰明了。
