霍金曾说:“我们人类自身不过是宇宙中一些基本粒子的组合,可以对宇宙的奥秘了解这么多,简直就是一个巨大的胜利。所以不要忘了抬头看看星空,不要老是盯着自己的脚,要有好奇心。”深圳设计公司
Hawking once said: “We human beings themselves are just a combination of some basic particles in the universe. We can understand the mystery of the universe so much that it is a great victory. So don’t forget to look up at the stars. Don’t stare at your feet all the time. Be curious. “
▼体验中心的走廊空间,白色光带遍布在天花板、墙壁和地板上,the corridor of the Health Management Center, white light strips spread all over the ceiling, wall and floor

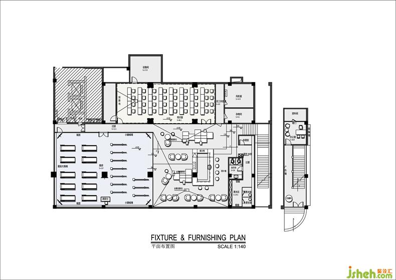
This case builds the health management center into a submerged scene, the purpose is to extract people from the external interference of the extremely busy and huge amount of information in modern society. Only by returning to their hearts can they really understand themselves and enjoy communication, which is the original intention of the designer to design this space. The project is located in the subsidence space of the underground floor of the main structure of the building, covering a total area of 550 square meters. Follow the step-by-step guide on the ground floor you can enter the public area of the health management center. White man-made stone bar is the focus of space, surrounded by an open negotiation area.
▼体验中心的公共区域,中心设有白色人造石水吧台,the public area of the health management center with a white man-made stone bar in the center
本案把体验中心营造成一个浸没式的现场,其目的就是要让人从现代社会极度繁忙、极大信息量的外干扰中抽离出来。回归自己的内心,才能真正了解自己,享受沟通交流,这是设计师设计这个空间的初衷。这个项目位于建筑主体结构中的负一层的下沉式空间内,面积共550平方米。沿着地面层的踏步入口指引,进入体验中心的公共区域。白色人造石水吧台是空间中的聚焦点,四周环绕着开放式的洽谈区域。深圳设计公司
▼体验中心爆炸轴测图,the exploded axon of the Health Management Center

