色调以简约现代元素为主,有别于传统较为规整严肃的空间印象,利用灵活的设计语言以及建筑空间形式将内敛,精致,文化,人性化的元素与空间结合,提升空间识别度。大面积的白通过形态的不同在灯光下形成多元层次,木饰面为设计中调节空间氛围的元素,辅以细微变化的木色,建立空间秩序。
木饰面墙体产生的隔断感温和有力、收放自如,自然方正的形态遵循理性有序的设计法则,从而让整个空间有了延长性、艺术性,工整有序,流畅而舒适。办公室设计


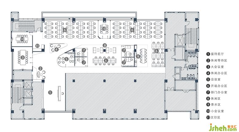
办公室设计





白色是整个重新建构的空间中保持稳定的部分,而由定制木质造型的体块、超白玻璃、家私形成的不同色调,不同质感的材质,就成了整个空间中最活泼的元素,与白色相得益彰。让整个空间呈现出静谧但不沉闷的氛围。办公室设计