除此之外,设计师还通过一些创造性的改造为原本直来直去的空间格局增添了美感和妙趣。比如次洽谈区的桌面延伸设计,大理石制的长条台面的一直延伸到入口过道,在视觉上造成被两扇云石墙壁夹在中间的效果,配合远端垂下的金属灯管、绿植盆栽和背景架,构成了一副微缩景观。在入口过道的转弯处,设计师在影音房外部安排了一个隐蔽门的视觉设计,通过使用不规则外观在视觉上“隐藏”了入口。
建筑的格局是南北通透,设计师采用了全高清落地玻璃设计,最大限度保证了室内充足的采光,自然的换气和视野的开阔。接待中心设计


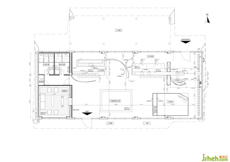
走进销售中心西南角的贵宾室,这一空间在色彩上选用了以白色为主的简约柔软色调,在场景的布置上选择了“中心合围式”布局。在细节设计上,变化在于高大的蓝色墨染涂鸦背景墙,在光影照射下好似一副流动的水墨画;见棱见角的大理石茶几是整个空间的中心,石材的硬冷反倒衬托出白色皮质沙发的细腻和灰色丝绒地毯的质地,低矮的家具选取和不贴四边的摆放使得整个空间在视觉上被纵向提高了一个层次,在横向布局上也更显宽敞明快。这些设计上的奇思妙想都为日常的迎宾会客增添了居家围坐的轻松和闲适,却又不失格调与排面。
卫生间台盆处的设计为全场最容易成为鸡肋的区域加分不少,一镜到顶的设计给了原本狭小的空间极致的延伸;而一根自天花板垂直而下的水滴造型水龙头更是点睛之笔,利用镜面反射原理给人造成了水滴悬浮空中的视觉效果。

二十一世纪初,有一首广告歌曲传遍了上海的大街小巷——《喜欢上海的理由》,这首歌的最后一句至今仍可以被人们记起:“我在上海,力波也在。”上海力波啤酒厂到达过巅峰,也曾坠落谷底。在新的城市规划迭代中,老酒厂正迎来新生机,“老地方”正焕发“新味道;”在设计师们的妙手巧思下,力波中心勾勒成影,搭建成形,正以新的建筑形态和社会功能激发新动能,摇身化为新的城市名片和区域地标,带给这座城市和生活在城市里的人以巨大的惊喜。接待中心设计
不久的将来,上海的大街小巷再次想起熟悉的歌唱:“我在上海,力波也在。”
