欢迎光临聚设汇,装修找设计就上聚设汇!
   咨询电话:15602987227
登录    注册
聚设汇
首页 > 商业 > 西班牙德赛斯岩板展厅设计:待·续——创想世界

西班牙德赛斯岩板展厅设计:待·续——创想世界

在创作中软装师WENDY表示:我们模拟了家庭场景,比如客厅、餐厅、楼梯间及洗手间等,在橱窗空间内增加德赛斯岩板的元素,让来访宾客一目了然,岩板运用的融合性与多元性。

随着软装师WENDY的主题展间落地完成,色彩与材质的碰撞,硬朗与柔软的和谐,在格调的统领下,岩板展厅设计讲述了艺术与生活之美的宣言。这是一次探索性的实验成果,印证着空间生长出无限场域和艺术的可能性。

-

未来隐喻

收藏每一场自由创想

“1+N”的多功能变量,让设计师创意与艺术无限可能的生长,在这一空间找到了适合的土壤。空间中的陈列、情景、律动、节奏,变量都为后续创意的诞生留有空白。

无论是当下还是未来,这个展厅都将保持“未完待续”的状态,不断汇集各类设计创意,丰富岩板与空间的故事,未来,希望借由这一展示空间让设计师们拥有想象力的主场,在后续的活动中共建空间的“未来式”。

-

关于项目及主创About Project

© 区位图

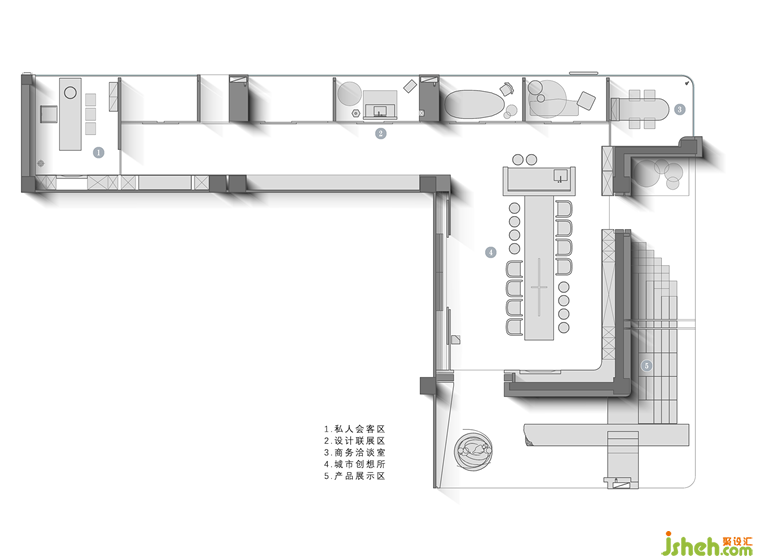
© 平面图

更多岩板展厅设计请关注聚设汇装修平台:

WUSUN SPACE 物上空间 创始人/设计总监

设计收费:600 元/平             

擅长类型: 地产、餐饮、商业、办公室

在线咨询

扫描二维码关注我们的微信

深圳市聚设汇文化传媒有限公司
主编热线:15602987227
总部:深圳市罗湖区梨园路128号宝能汽车大楼416单元
佛山、东莞、成都、重庆、福州、厦门、南昌、武汉、
杭州、苏州、温州、郑州、长春、沈阳、贵阳、柳州、
哈尔滨、九江等城市设立办事处
© 2017-2021 Jsheh.com 版权所有 粤ICP备17079093号
展开
回到顶部