欢迎光临聚设汇,装修找设计就上聚设汇!
   咨询电话:15602987227
登录    注册
聚设汇
首页 > 商业 > 独特的空间气质 —— 绿都地产郑州云立方展示中心

独特的空间气质 —— 绿都地产郑州云立方展示中心

04.

时空涟漪,流光如梦

Flowing like a dream

生机浩沛的美学空间。

无处不在的线条的运动美学,律动和美学内涵,综合到极致之处,就达到一种融合一种突破线条运动的极致,郑州售楼处设计乃是一波才动万波随,生机浩沛的生命活体。

效果图

Effect chart

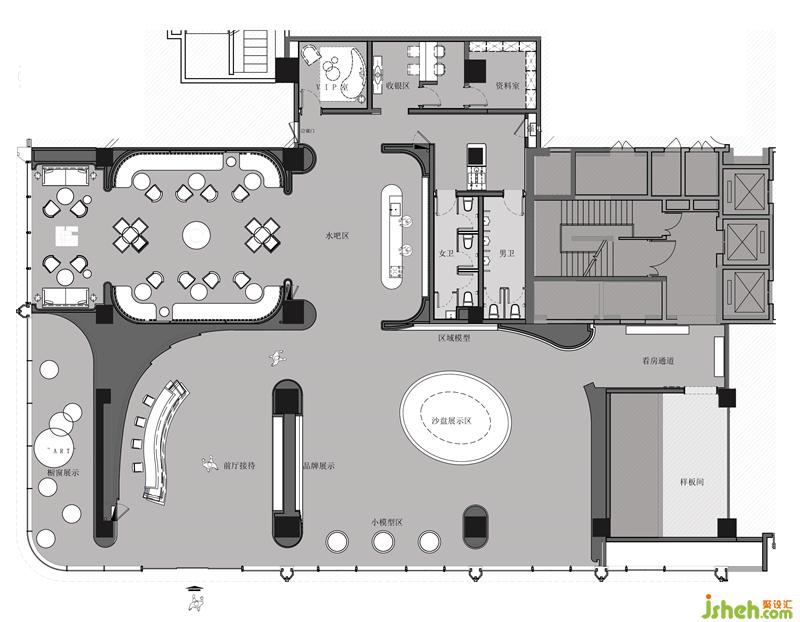
平面图

Layout plan

更多郑州售楼处设计请关注聚设汇装修平台:

上海飞视装饰设计工程有限公司 创始人& 设计总监

设计收费:面议 元/平             

擅长类型: 售楼处,样板房,会所

在线咨询

扫描二维码关注我们的微信

深圳市聚设汇文化传媒有限公司
主编热线:15602987227
总部:深圳市罗湖区梨园路128号宝能汽车大楼416单元
佛山、东莞、成都、重庆、福州、厦门、南昌、武汉、
杭州、苏州、温州、郑州、长春、沈阳、贵阳、柳州、
哈尔滨、九江等城市设立办事处
© 2017-2021 Jsheh.com 版权所有 粤ICP备17079093号
展开
回到顶部