▼ 互联网开放式办公结构,便于员工沟通
Using internet open-office structure to facilitate staff communication


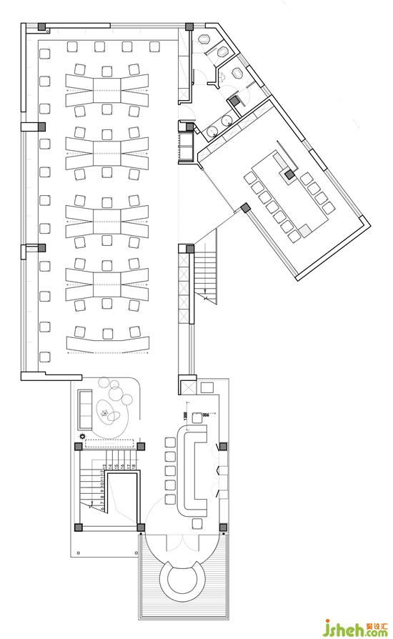
大会议室与办公区之间使用导电玻璃隔断。开启磨砂模式,隔绝视线、确保私密性;关闭磨砂模式,增加通透度,充分体现了现代化办公的灵活性。
The meeting room and office area are separated by conductive glass. Open the sanding mode, isolate the vision and ensure privacy; close the sanding mode, increase the transparency, fully reflecting the flexibility of modern office.
▼ 会议室使用导电玻璃,实现灵活的现代化办公
The meeting room and office area are separated by conductive glass


会议室门口的消防楼梯,保留了原本的明黄色,制造视觉上的一抹惊喜。消防楼梯直通夹层的独立回廊,布置为吸烟区。充分利用鸡肋空间打造多元化休息区,为员工保留一片“灵感空间”。办公室设计
The fire stairs at the door of the meeting room retain the original bright yellow color, creating a visual surprise. The fire stairway is directly connected to the independent corridor of the mezzanine, and is arranged as a smoking area. Make full use of the corner space to create a diversified rest area and reserve an "inspiration space" for employees.
▼ 充分利用夹层空间,打造多元化休息区
Make full use of the mezzanine to create a diversified rest area


二层水吧区往外,是一个小型的花园露台。用人造石打造融入建筑外观的装置艺术品,搭配灯光增添建筑的潮流感,同时兼具吧台功能。
互联网时尚行业的办公室,偶尔需要举办小型发布会。花园露台承担多样化功能,同时也是员工聚会、开趴的最佳场所。
Outside the water bar area on the second floor is a small garden terrace. An artificial stone is used to create the installation artwork integrated into the building appearance, and the combination of lighting can add some feeling of fashionable style, at the same time, it has the function of bar.
The office of the Internet fashion industry occasionally needs to hold a small fashion conference. The garden terrace undertakes various functions, and it is also the best place for the staff to get together and have fun.
▼ 随时可以举办时尚发布会的花园露台
The garden terrace occasionally needs to hold a small fashion conference
在本案中,设计师通过张弛有度、细致入微的空间规划,使小体量办公室得到放大,满足业主对空间的多元化功能需求;通过对玻璃、不锈钢、水磨石等基础建筑材料的重新演绎,与时尚行业的精神气质和美学追求达成共鸣;通过节能环保材料与最新办公科技的应用,打造可持续发展的现代化办公范例;通过深入洞察人性需求,综合多种建筑设计手法,创造了人与自然和谐共生的办公环境。办公室设计
多方面因素的综合,成功让破旧老楼起死回生,让广州X-ROOM创意办公空间蜕变为新晋网红打卡圣地,并斩获2019年AMP美国建筑大师奖、2019年伦敦设计奖等多个国际奖项。
In this case, the designer enlarges the small office through the smart space planning strategy with degree and detail to meet the diversified functional requirements of the owner for the space; through the re-interpretation of basic building materials such as glass, stainless steel and terrazzo, to resonate with the spirit and aesthetic pursuit of the fashion industry; through the response of energy-saving and environmental protection materials and the latest office technology , to create a modern office model of sustainable development; through in-depth insight into human needs, a comprehensive variety of architectural design techniques, to create a harmonious coexistence of human and nature office environment.
The combination of various factors has successfully turned the old buildings back to life, transformed the X-ROOM creative office space into a new cewebrity, and won many international awards such as the 2019 Architecture Master Prize and the London Design Awards in 2019, etc.