▲ 茶水区/ Pantry
▲ 会议室/ Meeting room
在整体空间中使用了浅灰色、白色和浅木色作为基调,办公空间设计营造出素雅、静谧的空间氛围,体现了大气沉稳的企业形象。为了打破这一沉静的氛围,我们在局部空间,如前台、茶水区和会议室,采用了跳跃的红色作为点缀,增添了一丝活力。灰色的背景墙、红色的地毯、黑白调的公司标志不仅在视觉上形成了层次感,还在细节处让人感受到空间的热情与创新。这种色彩搭配在体现公司专业性的同时,也为员工和访客带来了视觉上的愉悦感受。
The overall design employs light gray, white, and light wood tones as the foundation, creating an elegant and tranquil atmosphere that reflects a poised and dignified corporate image. To break the subdued tone, vibrant red accents are strategically introduced in key areas such as the reception, pantry, and meeting rooms, adding a touch of vitality. The gray background walls, red carpeting, and black-and-white company logo create a sense of visual depth while subtly conveying warmth and innovation through the details. This thoughtful color palette not only underscores the company’s professionalism but also offers employees and visitors a visually delightful experience.
开放与私密:功能空间的优化与细致分区
Openness and Privacy: Functional Optimization and Thoughtful Zoning


▲ 开放办公区/ Open office Ares
在开放办公区域,我们采用了Steelcase的家具,结合家具巧妙的隔板设计,为员工提供了一种开放但私密的工作体验。办公区域的布局既注重团队协作的便利性,又能为个人工作提供相对独立的空间。这种布局设计在保证沟通的同时,也让每位员工都能在舒适的环境中专注于工作。
In the open office area, we utilized Steelcase furniture, integrating its smart partition designs to provide employees with a work experience that balances openness and privacy. The office layout is designed to facilitate team collaboration while offering relatively independent spaces for individual tasks. This layout ensures seamless communication while allowing employees to focus in a comfortable environment.
▲ 小办公室/ Private office
▲ 放映室/ Screening room
在INFOLD洛杉矶的办公空间设计中,办公空间设计通过独特的布局和材质的巧妙搭配,使整个办公环境超越了传统办公空间的界限,不仅满足功能需求,还在氛围上营造出令人舒适的体验。前台区域的严谨与温馨、走廊的节奏感、茶水间的明亮与活力,逐步构建出一个富有层次感的空间。
这个空间不止是工作的场所,更是一个促进交流与创造的场域。在这里,员工们既可以专注于工作,也可以享受片刻的放松和社交时光。灵活的开放布局与精致的细节设计,在大气和沉稳的整体基调中注入了温馨与亲切,使整个办公空间散发出自然舒适的氛围。
In the design of INFOLD's Los Angeles office space, unique spatial arrangements and skillful material combinations push the boundaries of traditional office environments. The design not only meets functional needs but also creates a comfortable and inviting atmosphere. The precision and warmth of the reception area, the rhythm of the corridors, and the brightness and vitality of the pantry collectively shape a space rich in layers and depth.
This space is more than just a workplace—it is a platform for fostering interaction and creativity. Here, employees can focus on their tasks while enjoying moments of relaxation and social connection. The flexible open layout, combined with exquisite design details, infuses warmth and approachability into the overall dignified and composed tone, creating an office space that exudes natural comfort and charm.

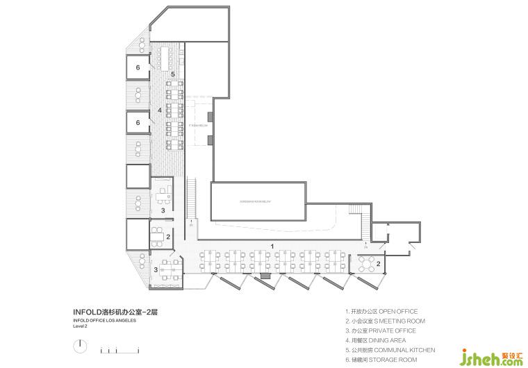
▲平面图Plan©域式建筑
更多办公空间设计请关注聚设汇装修平台: