欢迎光临聚设汇,装修找设计就上聚设汇!
   咨询电话:15602987227
登录    注册
聚设汇
首页 > 商业 > 鹏瑞皓月湾营销中心

鹏瑞皓月湾营销中心

该展示空间中建筑、景观与室内相互渗透,是一场关于美的精神空间的营造运动,而非各种艺术品的堆叠来聚焦空间意向。

在这个通透的场地中游走,会让人感受到不同季节不同时段呈现的微妙差异和视觉感受。

佛山售楼处设计建筑的光与影、空间与结构在此消融,最终达到艺术与空间的共鸣。

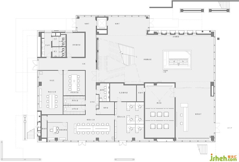
△ 一层平面图


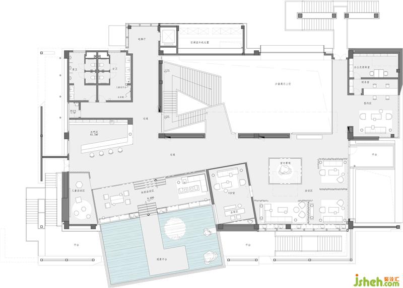
△ 二层平面图

更多佛山售楼处设计请咨询

于强室内设计师事务所

设计收费:面议 元/平             

擅长类型: 样板房,售楼处、酒店

在线咨询

扫描二维码关注我们的微信

深圳市聚设汇文化传媒有限公司
主编热线:15602987227
总部:深圳市罗湖区梨园路128号宝能汽车大楼416单元
佛山、东莞、成都、重庆、福州、厦门、南昌、武汉、
杭州、苏州、温州、郑州、长春、沈阳、贵阳、柳州、
哈尔滨、九江等城市设立办事处
© 2017-2021 Jsheh.com 版权所有 粤ICP备17079093号
展开
回到顶部