项目名称:海伦堡浙江·宁波象东府销售中心
设计单位:朗昇设计
项目类型:销售中心
主创设计:袁静、钟建福、杨镇武
项目地址:中国·浙江
项目面积:620㎡
主要用材:水泥漆、木方、石材、冲孔铁板、黑钢、铝格栅等
竣工时间:2019年01月
城市,是在大自然生态系统中无限增长的人文合集,作为自然和社会的结合体,城市既要跟从时代的发展,又要遵循自然的韵律,作为城市和时代的参与者,除了创造,我们还要在居住中思考人文与自然的关系。
自然、城市、人文、流动
Natural、City、humanity、Interaction、Waiting
本案设计以“城市剪影”作为设计主线,以城市在开发中与自然环境的融合为思考和切入点,在loft风格基础上加入自然和人文的温度,借用水泥漆、木方、石材、冲孔铁板、黑钢、铝格栅等材质的节制和暖意,打造一个轻松休闲的工业风空间。
寻觅·室内空间的自然韵律
旅游城市、文艺之乡,人口不多,生态资源颇丰,象山给我们带来的印象就是城市与自然的融合,所以在本案的设计中我们从周围环境涉取灵感,是自然也是必然。公共区域以光为引的功能布局,让室内外空间在光的连接中交相辉映,使得空间更加轻松舒适,近8米的挑空,城市、天空、山水、树木、动物、岩石、书籍等元素点缀其中,在复式空间的透明、开放、流动中营造出独有的艺术人文气息。
(冲孔铁板上绘制城市与时代的剪影)(岩石、山林、动物意向图与相对应实景)
对话. 空间的韵律与流动
室内空间的功能布局,是我们在设计过程中与自己的对话,也是空间里人与自然、人与人之间的交流。木格栅的造型取天空描笔之意,高处悬挂的灯饰如青色的竹蜻蜓般栩栩飞荡,而墙上的装饰画,随处可见的小动物摆件、书架上的绿植造型,就像是多啦A梦的童真世界,是时光和自然之美。
楼梯连廊贯穿整个复式空间,使得楼上楼下的交流更加自然、愉悦,玻璃的渐变渗透设计是我们细腻的小心思,让销售中心穿裙装的女生们驻足这里时更加方便。
守望. 与自然和解,在城市中守一份静谧从容
朗昇团队有幸与海伦堡集团合作近十年,并形成一种自然的默契,见证一个又一个有生命的居住项目在不同的城市中生长,在获得感官愉悦的同时也经常感受到心灵的栖息。也许,在城市和时代的剪影里,寻一份自然的静谧,是每一个设计者灵魂深处的守望,也是许多地产品牌的人文追求。
心灵与自然相结合才能产生智慧,才能产生想象力 ——亨利·戴维·梭罗



设计公司


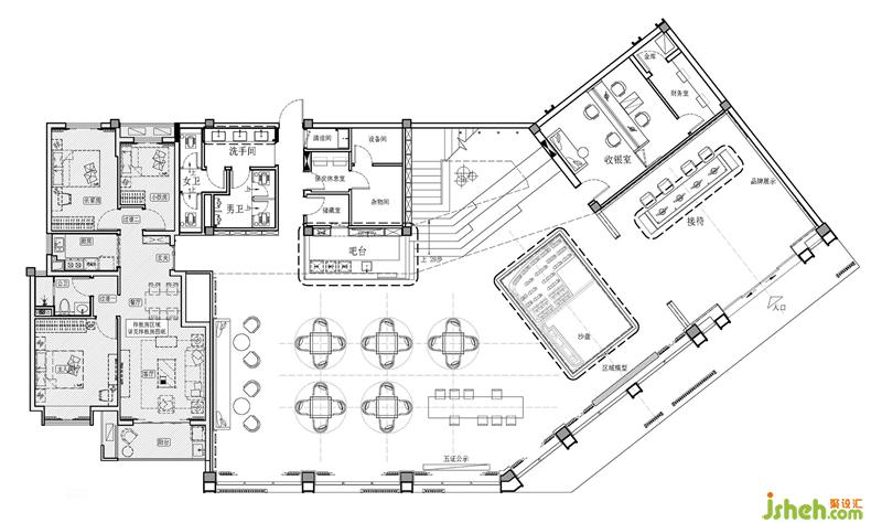
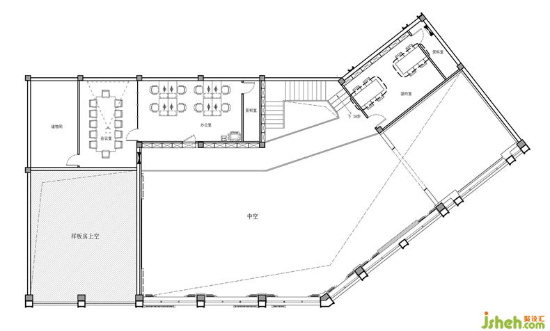
平面系统图

