


最喜欢的还是床尾看向外面的那扇落地窗,阳光明媚的早上,拉开窗帘,望着窗外,能发呆一上午。夜幕降临,能欣赏到华灯初上的景象,室内设计师也可携万家灯火入梦。
What I like most is the floor to floor window at the end of the bed. On a sunny morning, I open the curtain and look out of the window for a whole morning. When night falls, you can enjoy the scene at the beginning of the lights, and you can also bring thousands of lights into your dreams.

时间长了,也便有了更多期待,等风起,等雨来,等雪停,等日月交替、四季轮转...
As time goes on, there will be more expectations, such as wind, rain, snow, and so on.

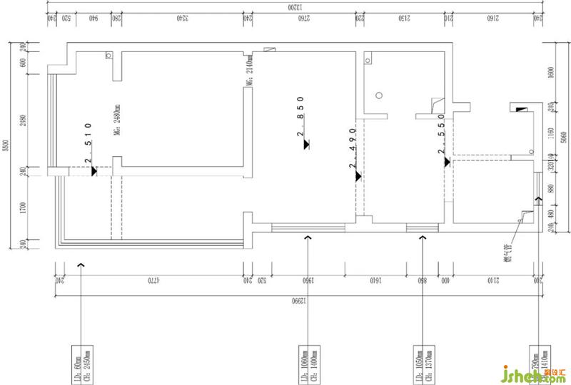
▼ | 原始结构图-Original Chart |
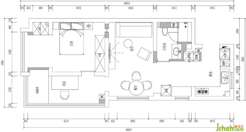
▼ | 平面布置图-Layout Plan |
更多室内设计师资讯请关注聚设汇装修平台: