项目面积:43m²
项目地址:江苏苏州
设计团队:一野设计
本案位于苏州市姑苏区三香路,
繁忙又繁华的市区里有着一家三代同堂,
6口人蜗居在一个43平的房子里,
年轻的夫妇、白鬓的父母,还有一双儿女
改造的前居住问题

没有合适的储物空间卫生纸堆砌在吊顶的灯带里,
没有隐私儿女和父母挤在一张床上

没有合适的排风父母的卧室和卫生间的窗户相连室内设计师



还有那不得不提的拥挤的厨房等等,除了司空见惯的老房问题以外,业主提出能不能给儿女独立的房间这些,如何改善为整个室内设计师添加了难度。
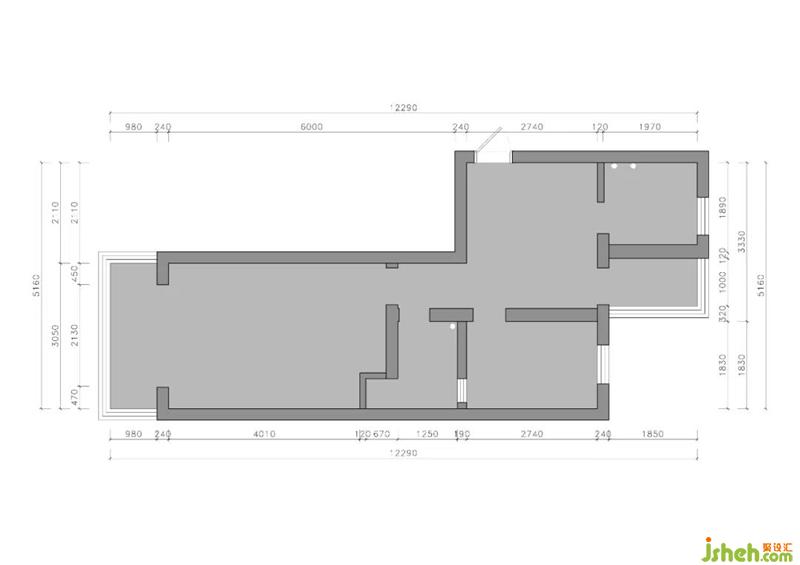
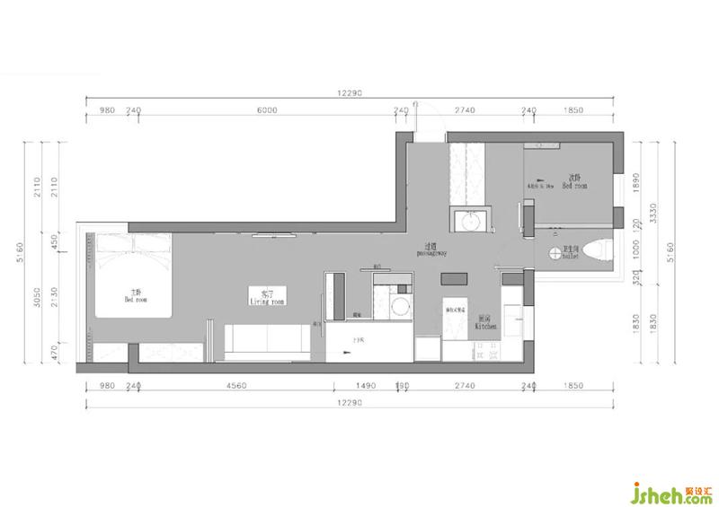
户型图对比

房型类似一个手枪,我们割舍了以前的空间,重新洗牌打散重组, 把以前的入门餐厅改造成门厅储物和书房改造成老人房的衣柜空间,在解决了储物的需求上,我们又添加了莫兰迪灰色的柜门和仿爵士白大理石木皮,白色的石膏线条和灯带穿梭了整个公共空间过道,连接着彼此。
改造后的实景呈现
