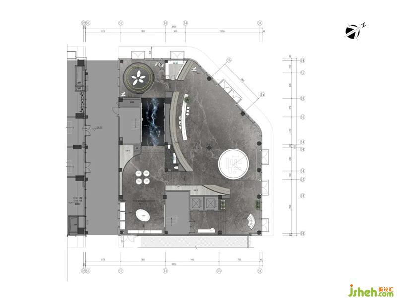
一间优雅的茶室既是两个洽谈区之间的“文化走廊”,亦是多功能室,可满足不同需求。拱面金属格栅造型,弱化空间方与闭塞之感,以柔美的形态点亮空间。吉冈德仁的透明长凳纯净如冰,与钢丝椅并置,透出一种空灵的美感。

“山有木兮木有枝,心悦君兮君不知。”一首《越人歌》是中国文学史上,较早的明确歌颂恋情的诗篇。
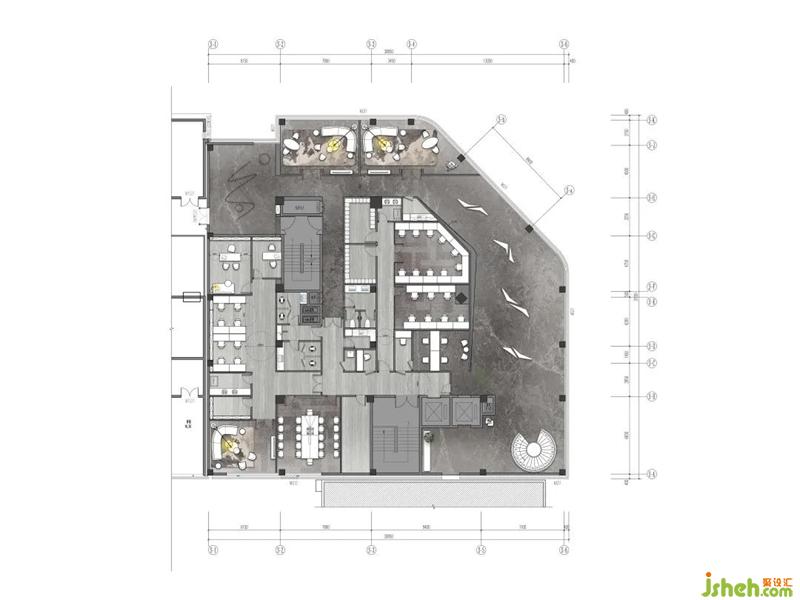
古雅悠长的节奏,具有一种身处山间,自然气息扑面而来的气质。这种悠然的意象,在三层艺术廊中唤起一种内心的向往。山水田园一体,首层透明的水波层叠意象,到了艺术廊就演变成层峦叠嶂的山间密语。
鸥鸟翔集,乐而忘归的装置艺术,增加了空间中山间意象的情趣,呼唤人们听从内心的呼唤,忙中抽闲关照当下的生活,在日常中感受到时空交错,珍惜每分每秒。
VIP是空间中的归结点,也拥有最好的风景。半圆弧的空间以一种拥抱的姿态构成空间主体,将核心聚拢在洽谈区。木制墙板以完美几何曲线,温文尔雅地表达出对东方人的生活的态度,一如反复吟咏的楚辞,唱诵千年。


更多武汉售楼处设计请关注
「 卓越设计缔造品质空间 · 助力中国城市发展 」 Creating Quality Space Through Excellent Design,Powering the Chinese Urban Development
设计收费:面议 元/平
擅长类型: 办公文教、医疗养老、商业零售、轨道交通、地产住宅