欢迎光临聚设汇,装修找设计就上聚设汇!
   咨询电话:15602987227
登录    注册
聚设汇
首页 > 家装 > 晨曦丨从上海到南京我们见证了彼此的成长

晨曦丨从上海到南京我们见证了彼此的成长

适宜的小摆件点缀,增添空间趣味性。

Appropriate small ornaments add space fun.

小房间彩光俱佳,现场制作榻榻米。

The small room has excellent color and light, and tatami is made on site.

书房的悬挂式书桌,与柜体自然衔接,形成一体南京装修设计。

The hanging desk in the study is naturally connected with the cabinet to form a whole.

洞洞板是收纳小物的好能手,不占桌面位置,还能起到装饰墙面的作用。

Dongdongban is a good hand for storing small objects, not occupying the desktop position, but also playing the role of decorating the wall.

原始结构图

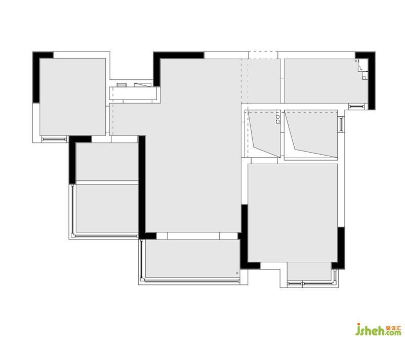
平面方案图

更多南京装修设计请关注聚设汇装修平台:

南京壹石设计

设计收费:140 元/平             

擅长类型: 家居住宅、办公室、公寓、别墅等

在线咨询

扫描二维码关注我们的微信

深圳市聚设汇文化传媒有限公司
主编热线:15602987227
总部:深圳市罗湖区梨园路128号宝能汽车大楼416单元
佛山、东莞、成都、重庆、福州、厦门、南昌、武汉、
杭州、苏州、温州、郑州、长春、沈阳、贵阳、柳州、
哈尔滨、九江等城市设立办事处
© 2017-2021 Jsheh.com 版权所有 粤ICP备17079093号
展开
回到顶部