项目地址:中国/绵阳/富临外滩
项目面积:140+
设计机构:田园装饰原创机构
服务模式:全案设计
创意主案:杨康
软装设计:张富城
空间摄影:久住JIUZHU
模特出镜:空喜
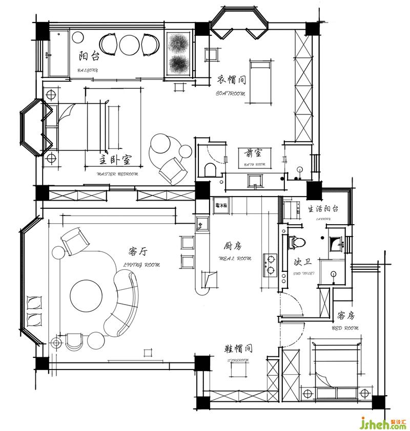
原建筑140平
基本拆除原始所有墙体做全新重建
按照一个女孩子的独立空间去做规划
考虑到母亲偶尔探望所以保留一间客房
本案是母亲送给女儿十八岁成人礼,使用者佳怡是一位优秀而独立的女孩。她对自己未来的家有很清晰方向,我要做的就是还原并建构她的乐园。
【每个人都拥这自己的精神乐园,也都渴望得到这属于自己的岛屿,因此房屋就显得格外重要。它不仅仅单纯是一个遮蔽居住的地方,更是人得以放松宣泄情绪温暖而亲密的包裹体。于我而言,我期待我的房子是具有唯一性的,不同于他人的。每个房子其实都是独一无二的,房间能够显示一个人的爱好特点,彰显性格偏好。设计建设起了基调框架,家具融入了细节特点。一个完美的作品是无数个无缺的细节组成的。沟通达成共识,希望能够理想化】
以上这段话是佳怡写给我的作文命题


入户鞋帽柜
在属于自己的岛屿里面
我们何不让一切的使用界限模糊化
可躺沙发亦可座在飘窗
可在椅子上看书亦可在踢步上发呆

开敞厨房及吧区
拉近了整个空间的关系
让聚会和闺蜜趴变得绚烂

定制的黄铜字
宣示了空间的主权
