风格:现代
坐标:深圳(公益项目)
面积:28㎡
设计师:薛莲、曹威、成晓一
设计公司:深圳涵瑜设计
这个只有30平老房的委托人单亲妈妈阿美,一个人担负着全家的生计;君君学习条件不佳,但是成绩很棒,也活泼开朗;阿美的妈妈快80岁了,还在做义工,阿美出去忙工作的时候,君君基本是由外婆来带;阿美姐姐得了很严重的疾病,现在是长期住在医院。
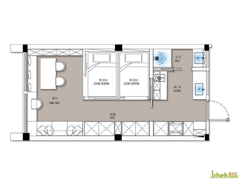
在实际只有28平米的房子,该如何满足四口人住呢?
▲ 原始户型
老房子有40多年了,墙体结构是危墙,全拆重砌与墙面翻新是一定要的。君君长大了,需要一个独立的学习空间和居住空间,整个空间划分出了客厅、厨房、卫生间、学习区以及四个人的卧室,为了保证大量的收纳,设计了22立方的储物收纳空间,这个空间几乎是利用到了极致。
一楼
阁楼
进来就是玄关,由于使用空间比较小,我们将厨房跟玄关是做了一体的设计,包括黑色门框里设计了隐藏式的玻璃推拉门,当炒菜有油烟的时候,将这个门关起来,厨房就是一个独立的空间,不仅阻挡了油烟,视觉上还是通透明亮的。
这一块区域都安排的满满的,几乎都是紧邻的,将他们合理的融合在这片区域里,有条不紊。玄关安排了换鞋柜登与全身镜,可以满足君君上学前的仪容仪表整理。
包括收纳的每一层隔板都是可灵活变动的,可装可卸,可以根据他们的个人需求,随意变换。
卫生间
由于空间局促,君君一家人都是在厨房用盆淋水洗澡,如今终于有了属于他们体面的淋浴室。壁挂悬空式洗手柜台可以方便清洁,镜柜是非常适合小户型的设计,收纳和照镜子两不误。
储物长廊
再往下走就是长长的走廊,这一面储物可以容纳大量的日常物品与一家子的生活衣物。
