设计团队 | 深圳涵瑜室内设计
房屋位置丨 华润城润府
面积户型丨 77 ㎡(2 室)
常住成员丨 一对夫妻
主要材质丨 木、灰泥、黑钢
主题配色丨 白、灰、黑、深棕
说在前面
本案业主是一对90后年轻夫妇,这套属于他们自己婚后共同拥有的家。欧阳小姐与W先生是很可人的一对新婚夫妇,个性鲜明且幽默风趣。他们纯粹的爱情既简单而又丰富,欧阳小姐用她的细心、认真、体贴和独立让W先生确信她,就是那个可以和他共度余生的人。男女业主对于现代风有一定的偏好,业主的个性比较独立,深圳装修设计同时希望这个家的调性是与自己性格更契合的家。
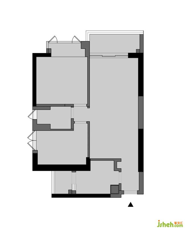
户型分析
原布局:
• 客厅进门一眼看见沙发,心理上没有安全感,沙发摆放处也不是景观最佳的方位;
• 餐厅功能相对比较拘谨,两面靠墙不便于进出;
• 书房相对比较封闭,与其余空间缺少对话情景;
• 洗手间早上时段使用的频率较高,功能使用容易有冲突;
• 生活阳台面积小,功能不能很好的发挥作用;
• 主卧衣柜面积相对较少,未达到满足使用需求。
平面图
基于男女业主对于现代风有一定的偏好,业主的个性比较独立,同时希望这个家的调性是与自己性格更契合的家。因此,我们决定推到重来,让它复原成毛坯房的状态,重新出发。
玄关
玄关入门处,刚好利用建筑结构的凹位,在强弱电箱位挂上穿衣镜,并排处放置洞洞板,进门时可以随手把大衣、包包挂上去。在墙面材质上,做个空间的划分交代,让视觉在入门那刻,目光停留在,一个只为迎接自己而设立的生活仪式的空间。
西厨

由于两人都有喝咖啡的习惯,休闲时刻,男主会在岛台用咖啡机冲咖啡,女主则动手做舒芙蕾松饼来进行搭配。岛台上方设计的吊架,增添岛台的收纳,也同时是操作时的照明灯。
餐厅
餐厅的情景模式,是能与岛台、书房产生互动,一个可以发生很多故事的地方。餐桌的环形动线,让餐厅变成了一个很灵活的空间。

在餐桌用下午茶时,望向书房时,阳光从百叶穿透进来的光影,身处餐厅时是一种享受空间的状态。
如朋友在家聚餐,坐在餐桌用餐时,放眼望去便会看到主卧的房门,为了保证主卧的隐私性,以及客厅墙体的延展性;为此特意用了隐形房门的形式,在客观的视觉感受上,能与墙面有融合性,使墙面整体保持完整性。
餐厅
中厨是拥有生活中烟火气的地方,尽可能让空间比重更舒适,因此把小生活阳台,这个无作为的小空间尽可能利用上,重组合并为厨房空间。