设计团队 | 深圳涵瑜室内设计
房屋位置丨新德家园
面积户型丨45㎡(1室)
常住成员丨2情侣
主要材质丨木、玻璃
主题配色丨黑、白、灰、原木
这是属于一对小情侣的小世界。在深圳这样寸土寸金的地方购买小户型,是他们“生活真正开始”的出发点。在本质上,这个【家】代表着一种认同感。涉及到彼此对自己,对归宿,对幸福和稳定的认同。
在这里,他们开始以一种郑重的态度面对生活,让这处小小的生活场所兼具个人风格与生活品质。
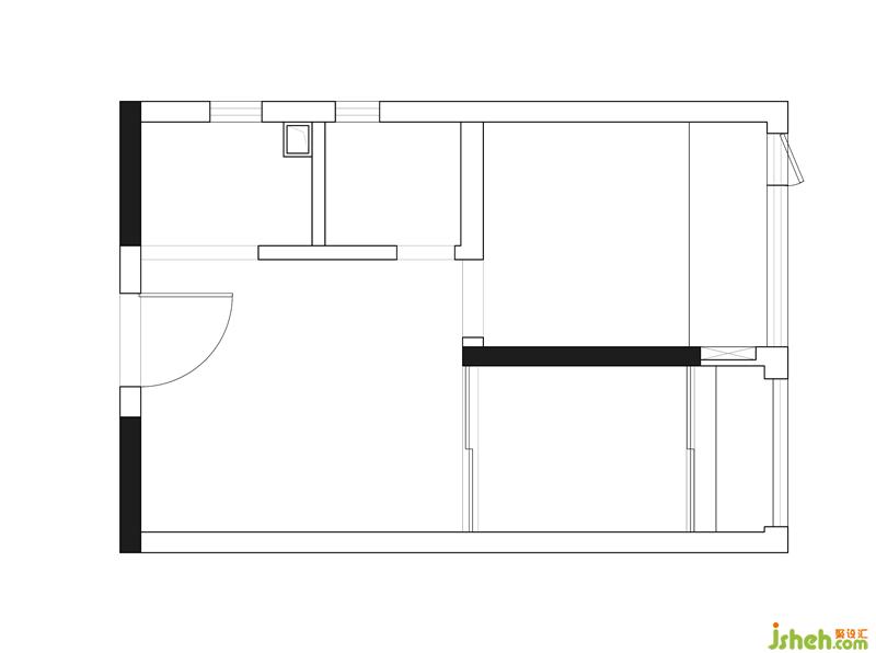
户型分析
原始图
由于承重墙的限制,深圳室内设计师没有大改布局,首先阳台进行了封窗,并且精细了墙体的划分,与功能的运用。开放式的厨房,带隐形门的卫生间,为了让更多自然光的倾泻,特别设计了玻璃门的卧室门与玻璃的书房推拉门。都是为了让
空间变得通透,不能因为空间的限制而让视觉上显得局促。
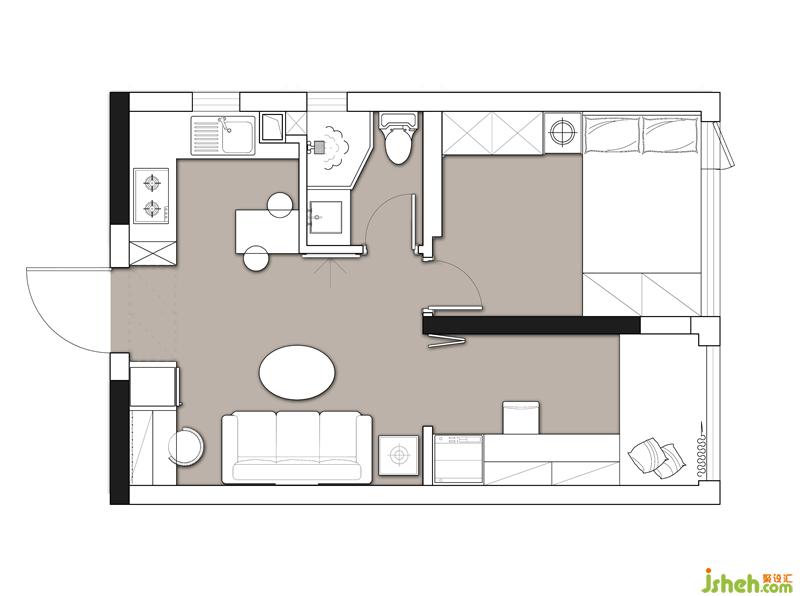
▶ LIVING ROOM
平面图
空间都以奶白色为主色调,因为白色素净,能给予空间自由感,不会限制人的思绪。整个风格走的是现代风,用了无主灯照明体现整个简约的空间,再加上轻薄的装饰物,让整个空间都显得干净温柔。
在小空间里打造良好的采光、视线、动线,引入大自然的治愈,享受生活的轨迹。

马先生几乎每天早上都有喝咖啡的需求,所以我们深圳室内设计师在沙发的旁边设计了咖啡吧台的小空间来提供煮咖啡的空间。


一目了然的区域,简洁不会感到凌乱。不会太多也不会太少,一切都是刚刚好。
原本的方案是在这个空间设计一个小吧台做餐厅的,但是由于空间实在不够,吧台做上去会导致厨房非常的局促,所以呢,我们就临时采用了这种折叠的方式,可以移动的折叠餐桌与椅凳,用的时候拉出来用餐,不用的时候折叠好放在
一边,在小户型的空间是非常适用这种移动折叠的方式,可以灵活在空间中随意运用。

