欢迎光临聚设汇,装修找设计就上聚设汇!
   咨询电话:15602987227
登录    注册
聚设汇
首页 > 商业 > 谢银秋新作|论Spa设计空间的仪式感和神秘性

谢银秋新作|论Spa设计空间的仪式感和神秘性

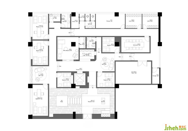
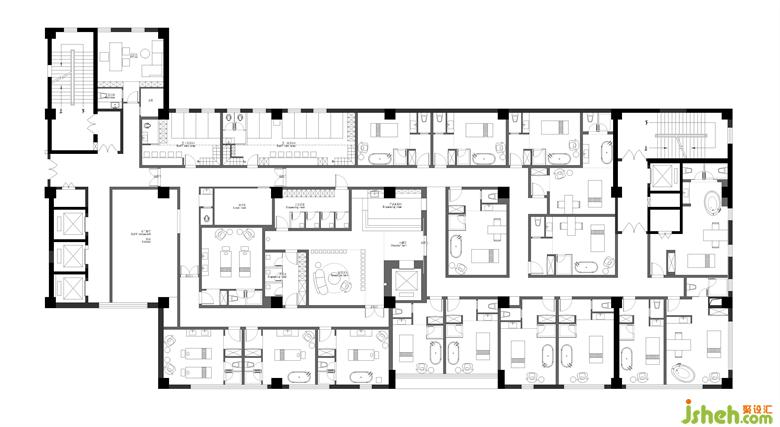
平面图 

一层平面图

二层平面图

谢银秋

设谷设计事务所创始人

世界华人俱乐部艺术设计顾问

谢银秋早年于香港设计师事务所、台湾整体软装国际设计机构等担任设计总监,后于09年创办空间设计事务所品牌【设谷】。主张用艺术为商业赋能,将“几何结构空间,空间吟唱诗意,诗意礼赞生活”发挥到极致,并提出【东方极简】&【当代侘寂】的设谷设计理念。

更多SPA设计请关注:

设谷设计事务所创始人

设计收费:面议 元/平             

擅长类型: 办公,餐饮,豪宅

在线咨询

扫描二维码关注我们的微信

深圳市聚设汇文化传媒有限公司
主编热线:15602987227
总部:深圳市罗湖区梨园路128号宝能汽车大楼416单元
佛山、东莞、成都、重庆、福州、厦门、南昌、武汉、
杭州、苏州、温州、郑州、长春、沈阳、贵阳、柳州、
哈尔滨、九江等城市设立办事处
© 2017-2021 Jsheh.com 版权所有 粤ICP备17079093号
展开
回到顶部