欢迎光临聚设汇,装修找设计就上聚设汇!
   咨询电话:15602987227
登录    注册
聚设汇
首页 > 商业 > 不一样的简约风办公室

不一样的简约风办公室

空间大面积使用白色与原木色,自然、轻松的办公气氛悠然而出;冷色系黑色边框的画作提升空间的艺术感,平衡空间色调;“黑马”画作有振作奋发的作用,寓意着飞黄腾达。

蓝色的大海画作能够平静人心,更好的思考和处理工作上的事务。

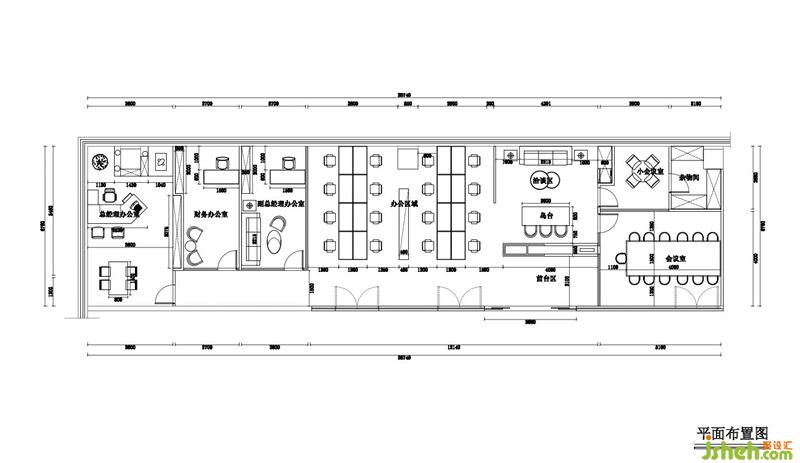
>>>平面布置图<<

深蓝室内设计工作室&辰沙室内设计 创始人兼设计总监

设计收费:400-600 元/平             

擅长类型: 餐厅,家装,别墅

在线咨询

扫描二维码关注我们的微信

深圳市聚设汇文化传媒有限公司
主编热线:15602987227
总部:深圳市罗湖区梨园路128号宝能汽车大楼416单元
佛山、东莞、成都、重庆、福州、厦门、南昌、武汉、
杭州、苏州、温州、郑州、长春、沈阳、贵阳、柳州、
哈尔滨、九江等城市设立办事处
© 2017-2021 Jsheh.com 版权所有 粤ICP备17079093号
展开
回到顶部