项目名称:尚峻
项目设计:深圳漾空间设计有限公司
软装实施:深圳漾空间设计有限公司
项目地点:深圳尚峻御园
项目面积:81平
装修风格:现代风格
作为年少有钱有为的95后,本案业主对于家十分看重“感觉”,不要有距离感的样板房,也不要乏味无聊的出租房。在对比多家公司后仍未怦然心动,直到机缘巧合之下结识漾设计。设计师从聆听和了解开始,熟悉她的日常习惯,解析她的生活方式……
part.1 业主需求
未来将作为婚房,是属于自己的小天地,完全可以按照自己的喜好去装修。
➋想将81平的精致小家打造出140平的视觉效果,小户型摇变大平层。
➌三房改两房,主卧要衣帽间,卧室空间怎么舒服怎么来。
➍想要100%落地,对标超五星酒店标准,把高级格调搬回家。
part.2 设计思路
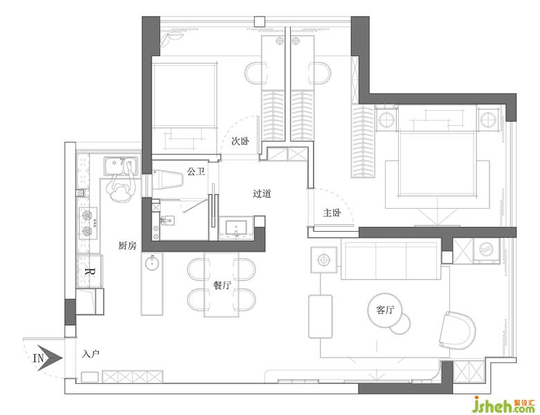
原始户型解析:
❶81㎡三房结构,实用性较高,但每个空间都不大,舒适性偏低。
➋厨房空间较小,操作台面不足,且一门之隔的生活阳台闲置过于浪费。
➌餐厅区域较小,无法正常放置餐桌,动线受阻。
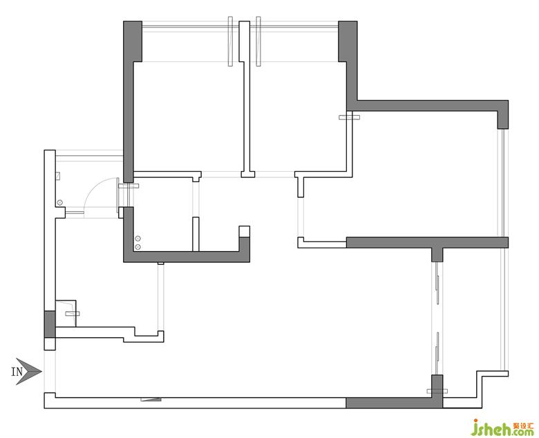
空间改造解析:
依照业主点的“菜单”,设计师使出浑身解数:
❶改三房为两房,为主卧打造一间专属衣帽间。
➋通过无主灯设计,还原层高,拓展立面距离感。
➌打通厨房,外拓阳台,最大化延伸公区空间,营造大平层视觉效果。
➍使用大理石+木饰板+氛围光,升级版“抄作业”对标超五星酒店,把高级大气和低调奢华通通搬回家。
part.3 实景图片
01 质感艺术

不锈钢+木质的结合提升空间质感,将鞋柜做成上下分体悬浮式造型,搭配大理石台面和连接上下柜的开放装饰格,使得鞋柜区域变得不再常规,自带非凡气质。


为将客餐厅这块公共区域尽可能放大,设计师可谓是煞费苦心,将连同客厅一侧的阳台融入背景墙,家装设计加大加宽背景墙尺寸,另侧直接延伸至入门鞋柜处,使得一个整面融为整体。