项目名称:深圳家装设计:无邪
项目设计:深圳漾空间设计有限公司
软装实施:深圳漾空间设计有限公司
项目地点:深圳招商海月花园家装设计
项目面积:127平
装修风格:现代简约风
不被定义,在黑白灰之中感受生活的松弛感~
“世界上没有一条道路是重复的,也没有一个人生是可以替代的。”虽然父母辈的拼搏留下了无数财富,深圳家装设计使后辈自出生便拥有了高起点,但如果只是坐吃山空,最终也不过是虚度光阴。我们应该为自己而奋斗,享受属于自己的人生!
这便是本案业主、一位90后、一位“深二代”的心声。
“深二代”的身份给业主本次装修也带来了两重体验,一重是高级、有质感、充满个性,为展现个人喜好的奇幻漂流;另一重则是松弛、慵懒、童趣,为置身个人天地的自由烂漫。
part.1 业主需求
❶90后独居小哥哥,深色系现代简约风爱好者,个性自由是他的标签,喜欢与之相关的一切。
➋潮牌公仔的收藏爱好者,深圳家装设计需要特意设计展示型收纳陈列它们~买衣服是小哥哥的另一个爱好,大容量的到顶大衣柜安排!
➌需要一个酷酷的、深色系的主卧,风格可以跟公共区域不一样,“个性”是核心要求。
part.2
设计思路
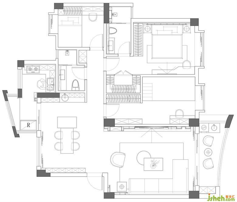
原始户型解析:
❶原始户型中规中矩,三房两卫的格局能满足业主使用需求,格局方面无需过大变动。
➋进门便是餐厅,深圳家装设计空间尺寸局促,无法同时兼容鞋柜和餐边柜。
➌厨房空间较小,一墙之隔闲置着小阳台,功能划分不合理。
➍公卫和衣帽间均较小,空间实用率不高。
空间改造解析:
❶在原有格局基础上进行优化重组,借用墙体空间增加收纳,提高空间实用率。➋深圳家装设计将原厨房空间打开,打通小阳台和储藏间,将厨房内置,打造宽敞明亮的L型厨房。同时,以玻璃门作为隔断,另一侧便是宽敞通透的餐厅空间。餐厅靠墙两侧均定制了到顶收纳柜,鞋柜、餐边柜、水吧台通通安排上!➌公卫前拓,将原过道位置纳入了其中,重新划分干湿分离,同时在淋浴房外侧留一组收纳柜,增加过道收纳空间。➍衣帽间由正方形改造为长方形,加设一组背靠背收纳柜,增加相邻两个卧室的收纳空间,同时提升衣帽间的实用率。
part.3实景图片
01 潮酷高级感

摈弃繁杂的装饰,流露出简约大气的空间气质。深圳家装设计拥有柔软曲线和金属光泽的单人沙发、黑色岩板圆边矮几、深色真皮L型沙发,不同材质碰撞出独特的魅力,既有童趣感又高级。

电视背景墙巧妙运用几何形体穿插的设计手法,在岩板之上加设凹槽内置吊灯,光源之下是黑色悬浮岩板台,既是造型又能充当电视柜。深圳家装设计左侧斜面之下是电子壁炉,仿真火焰在夜间格外有情调,平时又兼具加湿功能,实用技能点满!

客厅以黑白色系为主,在岩板、烤漆、金属等材质基础上加入木格栅丰富空间质感,沙发墙一侧更是运用银色水波纹墙饰装点,搭配玻璃落地灯,深圳家装设计散发出波光粼粼的光泽。