餐厅收纳井然有序,靠墙两侧是到顶收纳柜+局部展示柜,家居设计封闭式与开放式的结合,满足了多种物品的收纳需求。木制品极窄收边口展现了精湛的工艺,凸显业主极高的生活品味和细节追求。

主卧延续雾霾蓝的主色调,以整面硬包+不锈钢作为床头背景墙,一派沉稳静谧之感。墙面不锈钢更是顺势延伸至天花顶面,巧妙成为装饰造型,令空间在视觉上更有延展性。

梁位下以温柔的奶茶色木饰面为界,加设了女主人的梳妆台,丰富空间功能性。异形梳妆镜和小挂画相互呼应,使空间更具灵动性。

书房也是临时的客房,以翻板床+书桌形式满足多重功能需求。靠窗定制一整排书桌,顺沿梁位定制一竖排书柜,既增加了收纳空间,也解决了书桌受力问题。在这里,采光好、景色好、视野开阔,就连办公都十分惬意。
厨房素雅大气,浅灰色地砖搭配浅色纹理墙砖和白色橱柜,纯净的配色勾勒出简约大气的烹饪空间。
卫生间自然清爽之中又不乏创新,局部拼花墙砖格外吸睛,黑白灰中性色的使用令空间更显高级。白色的浴缸增加了沐浴的舒适感,让人十分惬意、放松。
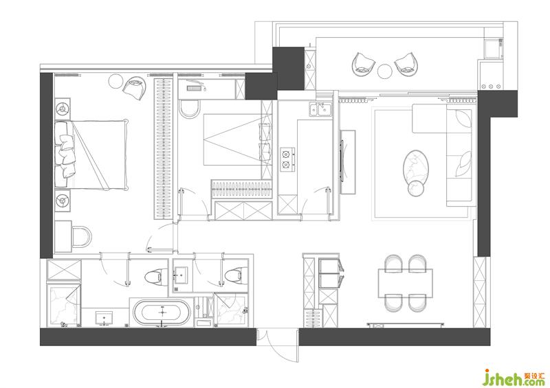
(平面布置图)
更多家居设计请关注