欢迎光临聚设汇,装修找设计就上聚设汇!
   咨询电话:15602987227
登录    注册
聚设汇
首页 > 商业 > 昆明保利城:感光空间的灵动美学

昆明保利城:感光空间的灵动美学

闻茶听风,慢享斟酌。“普洱茶’作为云南的特色,设计师以此为灵感,设计师通过提纯和处理的艺术手法描绘空间的主调,木质与理石的古雅,仿若浸润着普洱茶汤的氤氲色泽,在艺术间穿行闲缓自在的精神气格亦随之生长。

空间中,文化承担了空间故事的讲述者,营造了多处不同的精神感受。UMA伍玛设计贯以当代艺术手法结合昆明的自然风致,追溯民族文化的源头,在时代演变中演绎真实而生动的城市印记, 实现文化的回归。装修公司

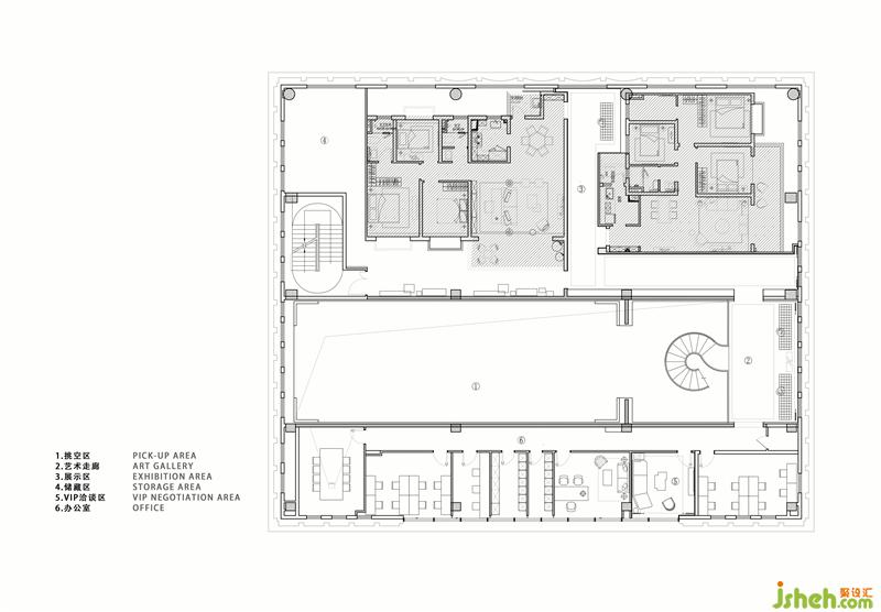
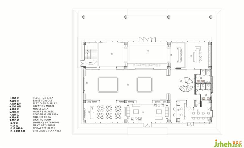
平面布置图

1F

2F

UMA伍玛设计

设计收费:面试 元/平             

擅长类型: 售楼处,样板间

在线咨询

扫描二维码关注我们的微信

深圳市聚设汇文化传媒有限公司
主编热线:15602987227
总部:深圳市罗湖区梨园路128号宝能汽车大楼416单元
佛山、东莞、成都、重庆、福州、厦门、南昌、武汉、
杭州、苏州、温州、郑州、长春、沈阳、贵阳、柳州、
哈尔滨、九江等城市设立办事处
© 2017-2021 Jsheh.com 版权所有 粤ICP备17079093号
展开
回到顶部