楼梯作为连接两层空间的纽带,贯穿空间区域引导视觉动线,引导来访者视觉点的游转,增添了空间的流动感与联结性。

以绿色明快的墙面分割设计媒介,垂直的绿色生态隔断凭栏处俯视空间的构成穿插。延伸了空间层次通透感,让空间的存在穿透和时间的界线。
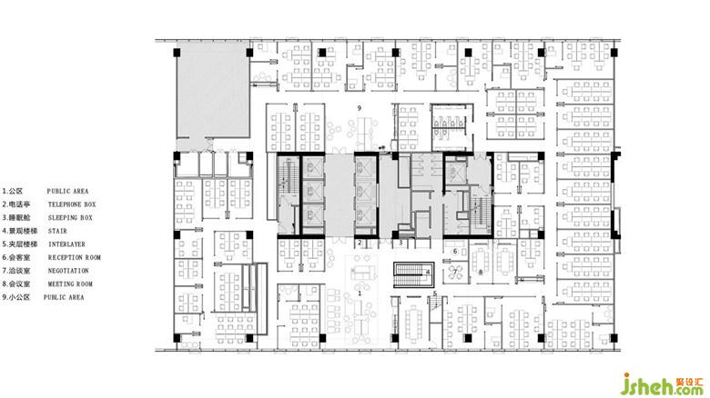
办公室设计
轻便的体块式座位赋予空间更多的组合可能性,凝练极简的线条抹去城市快节奏的焦躁感和挤压感。通过色彩的点缀为创造更好的办公环境带来更多的期待。
办公室设计

空间中的一抹黄色点缀,融合简洁的线条符合现代年轻群体的办公审美。空间与家具之间的相互搭配,满足空间多元化的功能需求。就像蒙德里安色彩构成的几何体块感,模糊了空间界面,促进情感交流、思想碰撞。促进职业社交的多元新型办公文化。办公室设计
