所有构成手法都呈现出一种不确定的交互意义,自由的构建与人群、空间、自然、色彩的对话关系。也正如原研哉所说的,“创意并不是要让人惊异它崭新的形式和素材,而应该让人惊异于它居然来自于看似平凡的日常生活”。
归心·憩
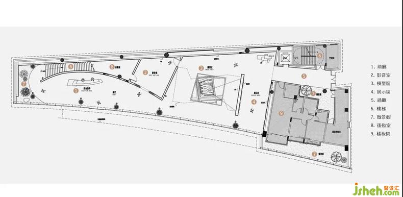
签约接待
拾级而上,来到二层的洽谈区。这里是一个轻盈而稳定、方正而开敞的空间,区在有序、丰富、松弛的艺术格调中自由生长,灵活而趋于稳定。
空间想传递的理想、艺术与理念,才是陈设设计落笔的绝佳点。空间转由雅灰布艺沙发、木质书架、抽象极简茶几配饰等组成的软装创想来呈现,探究空间与生活联结、场景与体验互通的终极意义。
端正轻盈、内敛谦卑,处处呈现出不施粉黛的细节。隐匿其中的秩序感给躁动喧闹的现实生活以新鲜空气,将纷繁的环境变得简单而平衡。


更多展示中心设计请关注聚设汇装修平台: