项目地点:河南郑州
设计公司:凯圣瑞设计
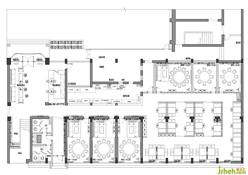
项目名称:清河源肥牛火锅
功能与艺术的有机结合,美食与空间的动态链接。
创意空间,匠心食材;
动与静,冷与暖,明与暗;
相互对立的元素彼此关联;
打破空间原有的秩序。
形态各异的线条重新排列组合;
绿植,竹子,饰品的点缀;
强调空间艺术性与感染力。
空间材质上采用原木,松果、莲蓬、竹叶、薰衣草、干枝、藤球等自然的装饰材料,与食材的选料相互依衬,又彼此独立。尽情展露出空间的感染力,活跃食客视觉的同时绽放了原生饰品的魅力。
墙面采用水泥肌理,红砖、等粗矿的材质,搭配古朴的质感的装饰格,香樟木板,太行崖柏的点缀。贴近自然,又延续自然于整个空间,赋予整个空间鲜明的灵性与动感。诉说它厚重的历史底蕴和未来。餐饮区分为大厅餐饮区和包间餐饮区。
局部餐饮区地面采用木质纹理地砖,天花顶部采用区域性薰衣草干枝修饰,与木质桌椅、暖性灯光的对比,遥相呼应,清新典雅,结构上拉近空间距离。隔断采用高低错落的通透器皿,器皿内放入天然饰品点缀,使整个区域充满生机和活力,起到了画龙点睛的作用。
相互对立的元素彼此关联,悠闲、舒畅、自然的生活韵味。
融已于景,融食于景。千磨万击还坚劲,任尔东西南北风。
过道尽头,竹子放置空间一角,错落有致,婆娑的光影,洗不尽那记忆深处的牵念。微风徐徐,翠绿摇曳,雅致与活力尽收眼底。秉持功能性与美感的有机结合,创造出美食与空间的动态链接。
坚硬的身躯在灰色水泥肌理及灯光投射下,不屈不挠。那不平的棱角,显示沧桑的轮回。在尘世,独显张扬。

餐厅设计
餐厅设计

餐厅设计

餐厅设计
