项目公司:东莞市佳易室内装饰设计有限公司
项目设计师:魏攀磊
项目名称:深圳·天空庄园
楼盘名称:梅林二街澳洲城楼顶
所在城市:深圳
项目面积:3000㎡
项目总造价:220万
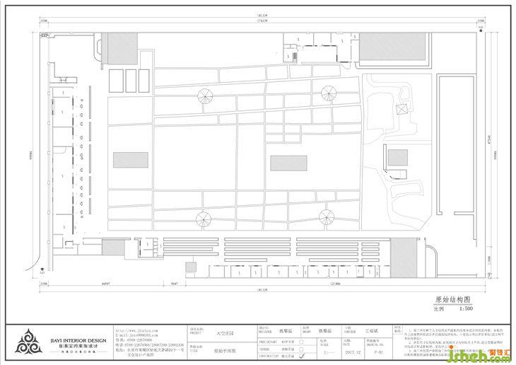
本案在深圳市福田区梅林二街澳洲城楼顶,设计范围近3000㎡,通过综合考虑与周围的环境,本着节约成本和废物利用的原则,以小改建筑、中改色调、大改氛围为主题,以新文人气质为切入点,从光效(借助自然光和灯光)营造整个庄园“采菊东篱下,悠然现南山”的意境。
设计公司
在两个入口坡道边用人物或山水意境画引人入境,考虑到坡道的安全,在墙角装有黄色安全反光牌保障来往的车辆安全。
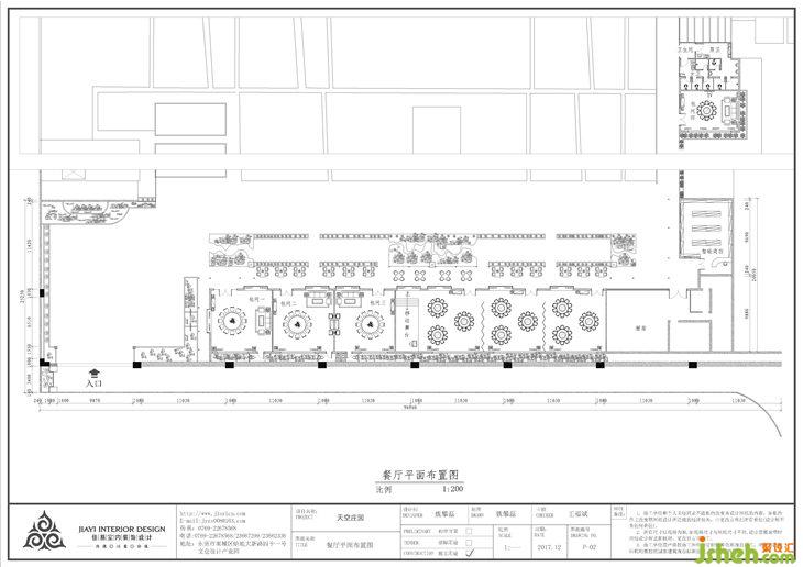
餐厅区的四个包房以“梅兰竹菊”命名,结合“琴棋书画” 进行有针对性的营造氛围,透过飘窗看户外的庄园,植物映入眼帘,飞鸟鱼虫声声入耳,给饭菜加色加味。
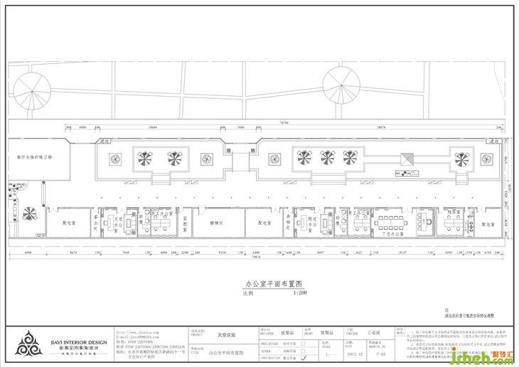
办公区有私密性,但考虑到整个庄园的氛围,用半透半露的景观性隔墙,加上花园式的办公环境,使办公不再枯燥。
设计公司
设计公司
设计公司
设计公司


