山石元素的大幅艺术作品寓意深刻,极具感召力,构筑如同美术馆一般的微妙空间。
艺术氛围与窗外流动的自然完美相融,在静谧中凝练思考,品、味、格皆可得到升华。
格间书吧陈列架之上是书卷与艺术摆件,以空灵清隽的建筑空间匹配城市雅仕身份。
在此,你可以有暂时的停歇。上海售楼处设计在繁忙的城市生活中,照见心灵,完成一次与自己的对话……

简约大气的空间梵境
不需复杂构筑
自然与真实便是天然雕饰
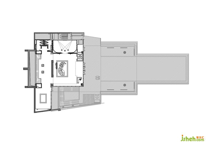
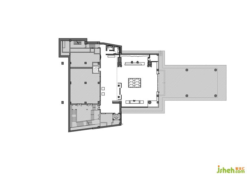
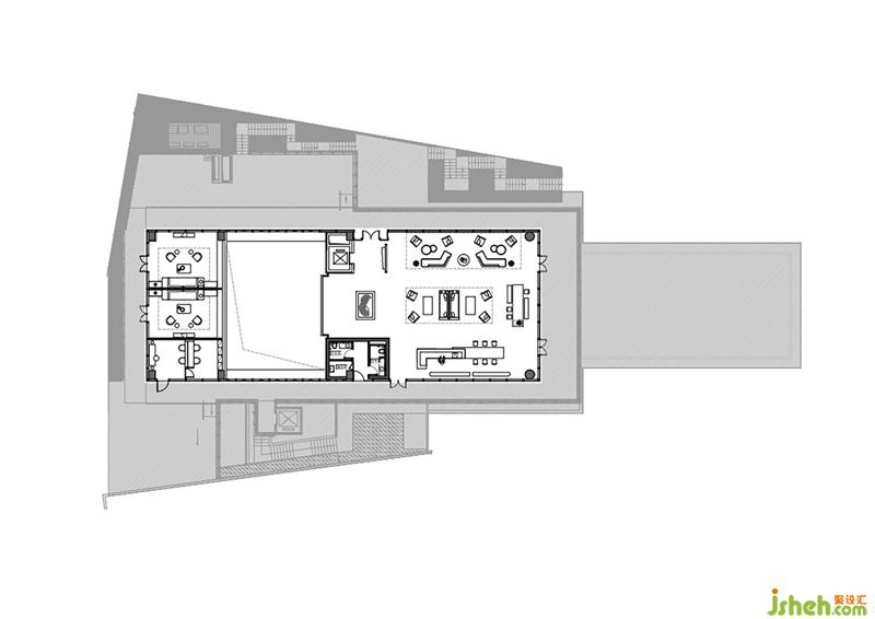
DESIGN PLAN
平面图
△ 一层平面图
△ 二层平面图
△ 三层平面图
更多上海售楼处设计请关注聚设汇装修平台: