Chapter 4
回眸間靜謐舒室
楼梯中是一幅山水景致,趋向简淡,然而简淡中有着无穷境界。水流倾泻而下,朗朗山间飞鸟跃过,满目空山远,邀请人辗转步入更开阔的天地。
宋的“旷”和“简”,与偏爱通透空间、简约生活、亲近自然的现代居住需求不谋而合。

△二层 主卧2F BEDROOM
卧室多纯色,少装饰,用宗白华先生的话说,是“初发芙蓉”之美。忙碌一天,回到不受打扰的休息空间,需得用宽敞、宁静、诚实的内心面对自己。
△二层 主卧2F BEDROOM
空间采用洗练工整、温雅清秀的框架结构,营造出生活的仪式感。所谓生活,不仅是生存,也是有趣味、有境界的“存在”。


△一层 老人房1F BEDROOM
寒梅俏于枝头,如莹莹白雪绽放于空中,成为空间的点睛之笔。“雪云散尽,放晓晴池院……一点梅心,相映远,约略颦轻笑浅。”宋词中的画面穿越千年,依旧能浸透心扉。
宋代美学,是一种由奢入简的返璞,唤回人们心中久违的生活仪式感,而这,正是长乐雅颂为当代人所营造的生活之美。
DESIGN PLAN
平面图
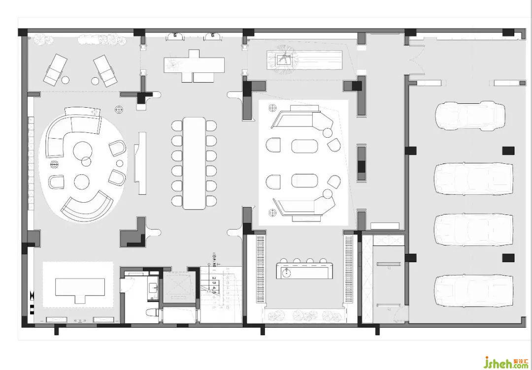
△负一层平面图
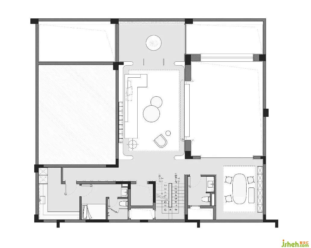
△一层平面图
△二层平面图
△夹层平面图
更多设计师请关注聚设汇装修平台: