

采用富有想象力的设计座椅和精致家具,为线条感强烈的复古空间增加了轻松时尚的动感。作为尊贵访者的交流空间,设计师巧妙选配形态低矮的沙发和家具形成通透沟通视野,让彼此的交流更畅通无碍。

VIP洽谈区以大幅玻璃窗广纳自然光,消解室内外的区隔,以窗为画框,将朝暮风光、四时景致纳入框里,期盼将访者与环境友善互动延伸入室,让青绿林木与日光化为最佳视角,塑造犹如漫步垂直森林的愉悦场景。售楼处设计
装饰墙采用有着高雅品味的翡翠绿大理石,和灯具轻盈金属的组合下内敛绽放。
深邃流淌,海派文化连接

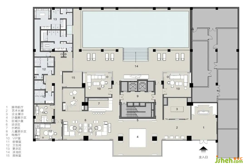
水,象征能量与活力,中国人更将水视为源源不绝的轮转动能。因此设计师将泳池水景设计在会所核心的功能区。在设计前期WJID与建筑设计紧密配合,尽可能的将自然天光融入地下空间,改善了地下密室化的局促感。泳池区域利用马赛克玩味复古时尚元素,升华海派东方的艺术氛围,有如值得细细把玩的珠宝,无论从哪个角度都值得赞叹。

泳池区与vip室之间的玻璃隔断不仅契合了空间宝盒的主题,同时让VIP室与外界相连 ,与泳池产生了互动,悠悠水波与光影增强了空间深邃氛围,营造一种尊贵不凡的艺术体验。
WJID在设计中始终呼应着珠宝的灿烂与永恒,整个空间在翡翠与钻石主题的交互作用下,创造出独树一格的视觉盛宴。以现代手法转译东西方珠宝之美,在生如夏花的光影之间,呈现出人类对于空间审美的另一种美好诠释。售楼处设计