洽谈区天花板木栏栅设计,以视觉界定空间焦点,隔栅直线无形延伸了空间宽度,也延伸出空间的优越。洽谈椅有巧妙的圆弧扶手,恰与墙面抽象画成圆弧协调姿态,象征微笑拥抱以及佛家笑对人生,知足常乐的人生态度。


△诵经阁梦幻光影视频“
初见都是黑,静下来多停留一分钟,就多发现一道光。听觉过后,黑暗里视觉其实也非常清楚,可以辨认出极幽微的光。”诵经阁的设计采用了多媒体的表现手法,完美的影音体验让人惊呼设计师将众生领悟从视觉、听觉的感受慢慢过度成心灵视域的追求,一步一步让前往的人们感受到技巧的极限距离信仰的沉静包容还很遥远……禅文化带来的是净化人心的力量,是惬意自如的生活方式。明镜湾的精妙设计,展现了禅学信仰的秩序与魅力,仿若我们于人间作为有情众生、如是因缘的心灵印记。售楼处设计
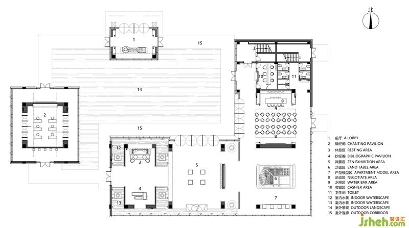
平面图