斯卡帕说:“希望他的建筑不通过柱式能给人一种古典的韵味。空间与建筑协调一致、共同生长。建筑局部与整体的观念充满了哲学的意味,建筑并非纯粹抽象空间而是不同元素的关系,墙面、地面、天面、台阶、门洞等。”

心灵的自然栖息地
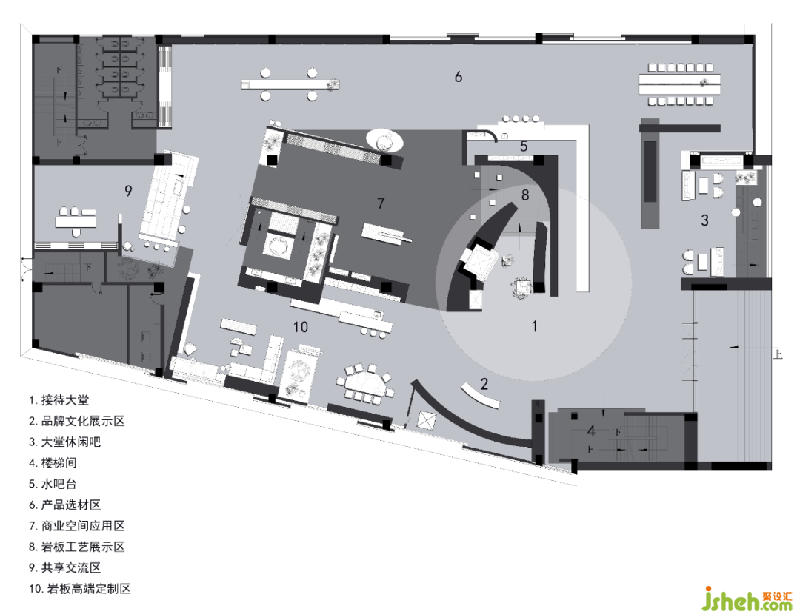
大堂吧通过松弛有度的地台设计,营造一处内外有别的休闲场所,向内可以轻松畅聊,向外可以欣赏窗外的景致,水磨石质感的坐台显出自然生态感,金属屏风以及台灯更增加精致的生活品质感,理想与现实于此碰出最相宜的相处模式。

空间的纵横叠加与开合,在光影的配合下,有序、丰富、松弛、层次分明,在流动的时间里,关切着成长的细节。





温润精致的生活之所
产品展区以连纹产品展示为核心,通过疏密有致的几何体块序列进行叙事。非对称空间是在空间维度上寻找平衡点,是相对复杂且丰富的,空间体量和疏密有致的几何体块之
的关系形成了空间独有的艺术形态。
在细节处理上,对材料的对缝,收边,比例都经过细致的推敲,对加工细节的极致追求,体现出对使用者的尊重感。将金属黄铜材质低调地搭配在空间中,使得室内的宁静氛
多了些许丰富的变化。而木材与石材的运用,亦使空间多了些温润及细致的表达。

设计以简洁更纯粹的手法去探索、思考,人与空间的对话,整个环境营造出低调而和谐的氛围,素净澄明的空间气质被巧妙地表现出来,吸引人想更近一步探索。柔和的色彩延伸到各个空间,形成安静温和的力量。私密的洽谈场域,通过轻盈通透的玻璃屏风界定区域,令空间在光线的勾勒中,回归人与自然、空间的相融交错。

自然的色彩过渡将人们的视觉平移至室外的天然风光,运用光线的变化,在质朴中呈现出永恒和典雅。环顾空间整体布局,以半隔断式的设计手法巧妙置景,传递更加开放、自由、温润的氛围,随着步入者的位置变换与视线流转,不同角落皆可自成一幅画卷佛山岩板展厅设计。


更多佛山岩板展厅设计请咨询