欢迎光临聚设汇,装修找设计就上聚设汇!
   咨询电话:15602987227
登录    注册
聚设汇
首页 > 商业 > 意大利IT总部展厅

意大利IT总部展厅

回归自然的素雅生活

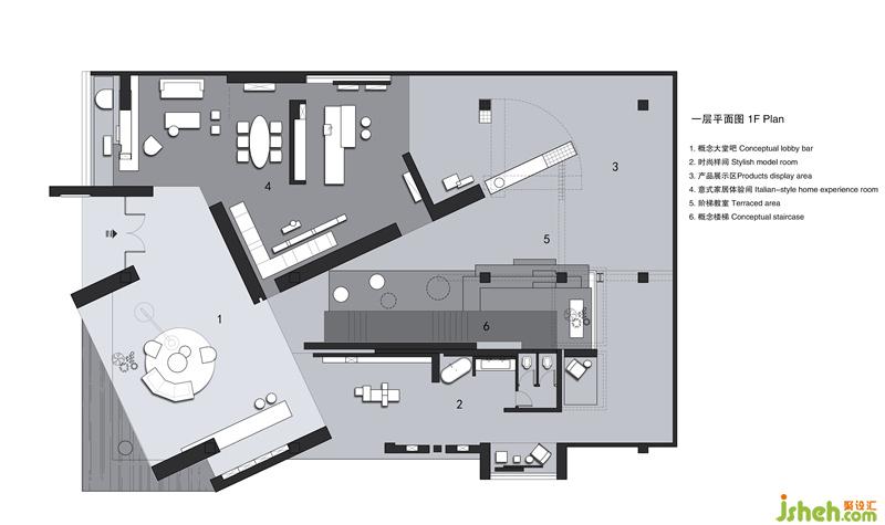
空间的本质是回归自然,混凝土质感的产品在光线的渲染下更显宁静本色,质朴的空间氛围使观者的内心抛去浮躁,回归宁静,用虚拟手段打造的苏州园林白墙和山影打破了这静穆,使封闭空间变得通透和悠然自得,塑造出一种羽毛般轻盈的空间质感。延续了一楼的设计元素,上下层互相呼应。用最自在的方式,诠释最纯净的白色佛山展厅设计。

更多佛山展厅设计请咨询

佛山市拓维室内设计机构

设计收费:面议 元/平             

擅长类型: 陶瓷展厅、商业空间

在线咨询

扫描二维码关注我们的微信

深圳市聚设汇文化传媒有限公司
主编热线:15602987227
总部:深圳市罗湖区梨园路128号宝能汽车大楼416单元
佛山、东莞、成都、重庆、福州、厦门、南昌、武汉、
杭州、苏州、温州、郑州、长春、沈阳、贵阳、柳州、
哈尔滨、九江等城市设立办事处
© 2017-2021 Jsheh.com 版权所有 粤ICP备17079093号
展开
回到顶部