欢迎光临聚设汇,装修找设计就上聚设汇!
   咨询电话:15602987227
登录    注册
聚设汇
首页 > 家装 > 89㎡三室改两居装修设计,让空间焕发新的想象

89㎡三室改两居装修设计,让空间焕发新的想象

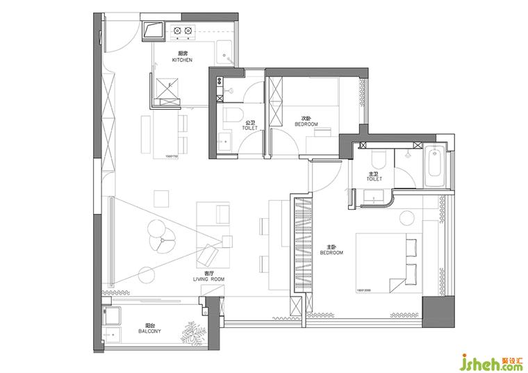
次卧配置了可延伸的箱体床,装修设计平日可收合为单人床或沙发,节省空间,也能满足不时之需。

主卫空间有限,但屋主希望能有较完善的沐浴与洗漱体验,需求与空间虽有冲突,但这也间接引发了我们对透景与体块穿插的想象。将面盆区向卧室拓展,与主卧梳化台共构,装修设计更为深切的连结了两个空间,连接的弧线也柔和了空间形体。

更多装修设计请关注:

UShine予象空间 主理人

设计收费:面议       

在线咨询

扫描二维码关注我们的微信

深圳市聚设汇文化传媒有限公司
主编热线:15602987227
总部:深圳市罗湖区梨园路128号宝能汽车大楼416单元
佛山、东莞、成都、重庆、福州、厦门、南昌、武汉、
杭州、苏州、温州、郑州、长春、沈阳、贵阳、柳州、
哈尔滨、九江等城市设立办事处
© 2017-2021 Jsheh.com 版权所有 粤ICP备17079093号
展开
回到顶部