
▲卧室的床品配色与客厅相辅相成,粉+蓝,搭配柔软的针织品、颜色鲜明的个性装饰画,中和了空间中的清浅。而床头的小台灯与壁灯发散出光圈般的光影,让睡眠与艺术融为一体。幸福而知足的生活莫过于“暗夜有暖灯,窗外有花开”了吧。

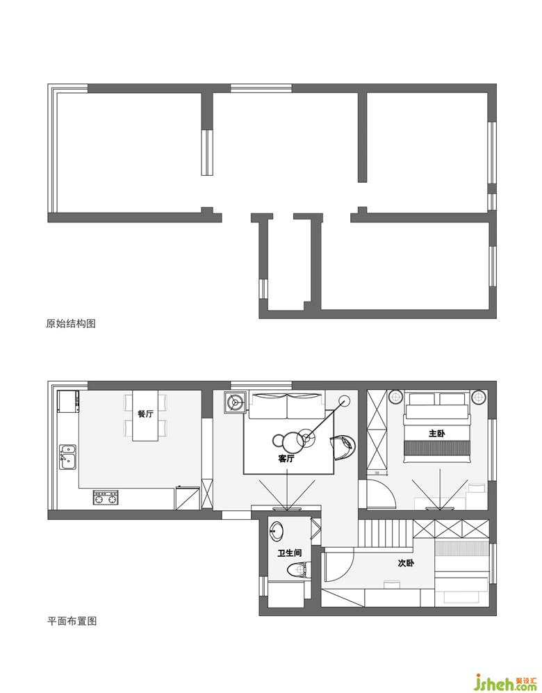
▲从客厅向次卧走去,原先在厨房的“楼梯”(非常小的洞口)被室内设计师改到次卧这,这样在使用上也方便了许多,同时空出厨房位置。

▲次卧室空间将榻榻米、衣柜和床头柜及书桌做了一体化结合设计,而避免空间中单一色系,设计师将这片区域以清凉的薄荷绿冠以整体定制柜。这样的整体定制设计不仅使空间利用率最大化,并且解决了空间储物需求。墙上的置物架和装饰品也都精心挑选,尽力将空间更具美好而有设计细节。无设计不生活。
▲原户型的楼梯在厨房一角,空间非常狭小,在改造中,设计师将次卧室划出部分区域来设置楼梯。原先破旧的露天平台也改造成了一个满满生活气息的小庭院。我想这是很多人心里渴望的吧。
