项目名称| 越秀·悦湖台营销中心
甲方单位| 越秀地产
项目地址| 湖南省长沙市岳麓区咸嘉湖路570号
项目规模| 990㎡;
软装限额| 2400元/㎡;
硬装限额| 2200元/㎡;
软装设计| 深圳市同心同盟装饰设计有限公司
硬装设计| 深圳市维捷装饰设计有限公司
越秀·悦湖台营销中心,是由TT&JV联合打造的艺术展示场所。TT&JV创始人曾经是10年同事,也曾共同服务于全球第三室内设计机构CCD,建立了深厚的情谊。从业二十多年,已为HILTON希尔顿、ACCOR雅高、STARWOOD喜达屋、RAFFLES莱佛士、IHG洲际、MARRIOTT万豪等国际知名品牌酒店管理集团.
时光荏苒,友谊长存。自分别创业以来,两位好朋友也多次联手为项目进行合作,这次有幸再次强强联手,越秀·悦湖台营销中心从项目的精准定位、概念设计、方案设计、再到整体的实施落成,用时不超四个月。在未来的道路上,双方将不负韶华再向前、坚守初心再出发!售楼处设计
楚辞有云:“浩浩沅湘,分流汨兮。”
千百年来,湘江水浪滔滔,奔腾不止,造就了渚清沙白的沿江风光带,更浸染着湖湘文化;岁月悠悠,斗换星移。古老的楚汉名城,屈贾之乡经历时代的变迁和文化的积累。
如今提及长沙,重现于脑海中的是美食美景及丰富的教育、医疗资源,以及令人耳熟能详的岳麓书院、橘子洲头滋养着这座城市,连接着每一个生活于此的生命个体。越秀.悦湖台售楼处作为越秀进驻长沙首个示范区项目,承载着销售、更新城市界面的高品质会客厅要求,同时希望带动片区的城市生活品质。
设计团队悉心提炼长沙的城市印象与地域文化,从书院出发将人文元素植入到营销中心空间设计概念中。售楼处设计
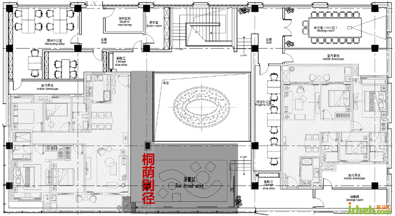
岳麓书院八景
前四景:柳塘烟晓、桃坞烘霞、风荷晚香、桐荫别径;
后四景:花墩坐月、碧沼观鱼、竹林冬翠、曲涧鸣泉。

在当代审美语境下,我们在设计中回归对优雅的艺术解读、物质与精神的互动。于极致简朴质雅中打造一个充满意境的艺术体验中心,彰显典雅凝练的空间美学。
竹林冬翠——接待大厅&辩客区



将简洁而界面分明的块面关系引入室内,平衡、构成、对比,这一系列关键词成为了我们解决空间的重点。通过体块的关系实现空间上留白, 是给生活留下想象的空间
三两艺术品点缀层次,增加空间趣味性,现代简约空间融合东方意韵情感。
原木质感的飘带造型似遒劲有力的笔触在泼墨挥洒,给空间特有的情景带入与意境升华。

“竹”历来为文人墨客所钟爱,富有自然气息的造景引入,强调“岳麓书院”主题同时软化空间界限,拉进物我距离。