欢迎光临聚设汇,装修找设计就上聚设汇!
   咨询电话:15602987227
登录    注册
聚设汇
首页 > 商业 > 《有·间》言馆

《有·间》言馆

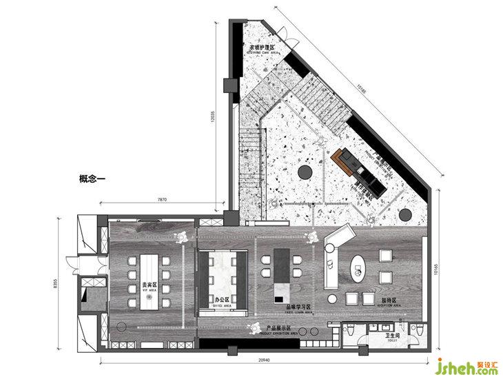
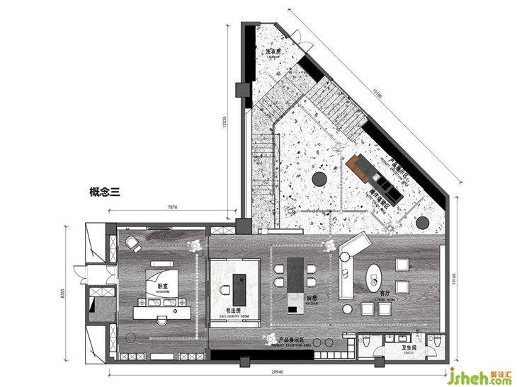
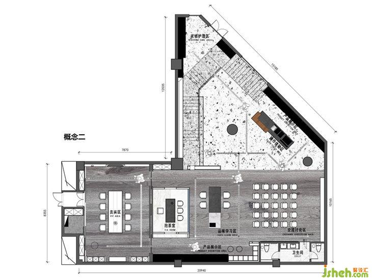
两边独立又似乎对称的过道设计,考虑到VIP接待室的人员双向动线性。白屋就像是过道里的一道风景,不经意间触动人心。对品质空间的思考,用冷静和艺术的方式表达出来。无论是结构还是装饰,都应该在真实的生活场景中拥有生命。空间的“自然化”和“多属性”是一值得思考的话题。

最终我们呈现了一个可以展示陈设、可综合办公、可商务接待、可艺术交流,的多组合场景空间。

当空间的体验感变成一种享受,空间美学,生活美学,就慢慢融合一块了。

福建天汇设计工程有限公司

设计收费:300-600 元/平             

擅长类型: 高端住宅、样板房

在线咨询

扫描二维码关注我们的微信

深圳市聚设汇文化传媒有限公司
主编热线:15602987227
总部:深圳市罗湖区梨园路128号宝能汽车大楼416单元
佛山、东莞、成都、重庆、福州、厦门、南昌、武汉、
杭州、苏州、温州、郑州、长春、沈阳、贵阳、柳州、
哈尔滨、九江等城市设立办事处
© 2017-2021 Jsheh.com 版权所有 粤ICP备17079093号
展开
回到顶部