层次与光影是渐次递进的媒介,以定制的几何结构为载体,创造出开放、共融的立体界面。
逐渐收窄,逐渐开阔,再收窄,再开阔。



延伸的端台,可以直达玄关,异形墙体的背后,是主办公区。办公室设计每个区域之间,相对独立又相互联结,充满了关于光影均衡的思考。

设计的价值,从来都不是体现在刻板的教条与艰深的理论,而是设计者的思考过程。它需要深植于使用者的精神诉求,以设计者的思维火花浇灌,再辅以生活的哲思和情感的共鸣,最后依托物理法则建立。
定妆花絮:
基础图纸:
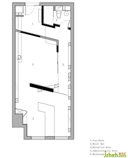
△平面方案图
想象从来没有边界 我们 一直在等待故事发生。
更多办公室设计请关注聚设汇装修平台: