设计 | 湖北思瀚设计
业主 | 康苑·康养酒店
项目地址 | 湖北省·天门市
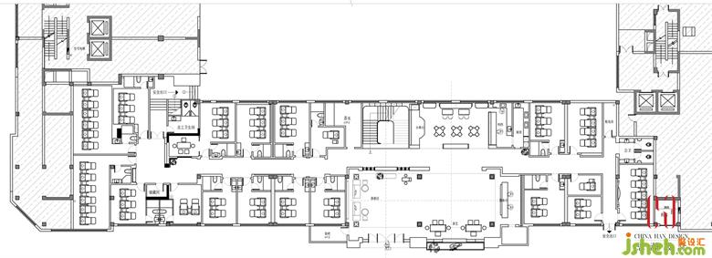
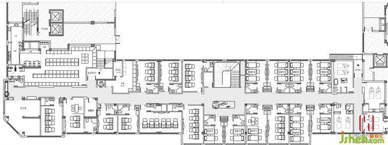
设计面积 | 2800㎡
设计时间 | 2019年6月
竣工时间 | 2020年4月
设计主创 | 孙为
软装设计 | 向梦莲
项目摄影 | 橙果视界·陈铭
思瀚新作| 康苑,从健康管理中心向康养酒店的华丽变身
好山好水好空气+一些无创检测康复理疗运动设备+几位健身教练健康顾问,就叫康养酒店?这还差的太远。
2013年至2015年间,对康养旅游的需求和消费增长了7%,是整个旅游业增长率的两倍,到2020年康养旅游估值将达到8080亿美元。亚太地区将成为未来增长的重要组成部分,是康养旅游增长最快的地区之一。
外有国际酒店品牌纷纷布局,内有阿那亚这样的康养小镇规模化发展。
不拼重资产,长周期,思瀚在新作——天门康苑的品牌升级服务中,沐足设计将康养集合体的业态、天门地域文化、东方美学运用于传统健康管理中心空间改造,探索出单体康养酒店的创新打开模式,与大家分享。
01
一家不像健康管理中心的酒店
“设计的首要任务是跳脱消费者对行业的刻板印象,实现具有区隔化的消费体验升级。”
项目甲方康苑在健康调理领域沉淀10年,室内设计需求的背后,实质上是品牌升级。
短暂的水疗放松几乎没有完整的体验更具吸引力,同质化竞争和标准化的商业服务,很难让品牌形成深刻的记忆点。
思瀚团队给出的解决方案是“康养集合体”,融沐足、茗茶、轻食、SPA/养生、在地文化于一体,帮助甲方从更高维度营造品牌势能。
而在设计层面,在天门这个茶圣陆羽的故里,设计师紧扣“茶礼精神”的俭、和、清、静,为空间赋予隐世的度假感、禅修感和文化认同感,讲述人们从俗世到桃源,在奇境中得到疗愈,并最终通过丰富的社交感官体验产生文化认同的故事。
02
离尘,不离城
“结庐在人境,而无车马喧。问君何能尔?心远地自偏”
所谓度假的仪式感,总结来说,就是“离尘,不离城”。
沐足设计以纷繁热闹中的清醒,尘嚣喧哗下的静谧作为追求目标,康苑用东方传统的“三进式”迎宾空间沉浸体验来放慢生活节奏。
l 外立面
元末画家赵原的名作《陆羽烹茶图》,被用来提炼并应用于建筑外立面格栅之中,消解了原来工业化建筑的平庸与花哨,通过室内与外立面的对比,激发人们曲径探幽的意趣感。
l 迎宾大堂
迎宾大堂由紧靠大门的换鞋区,中间过渡的茶艺区以及前台接待区组成。
沐足设计师用迎面的照壁替代了传统的前台,既符合传统建筑形制,也巧妙规避了空间进深感的不足,用东方园林的借景手法,为有限的空间创造了视觉的延伸感。
温润的光线,雅致的氛围,柔和的音乐,卸下生活的铠甲,回归个人内心追求,透过紧靠大门的换鞋休息区,将凡尘俗事关在门外,客人完成了室外到室内富有仪式感的过渡。
迎宾大堂
四平八稳沿中轴对称的大堂配备了茶艺台和接待前台,足够长的入户尺度和轻松的氛围,给客人以安全感和私密感。
l 楼梯&过道
俗语常说:“登堂入室”,沐足设计在东方园林和建筑形制的语境下,重要的不是结果,而是过程。
楼梯前
楼梯前
楼梯上
楼梯是整个两层空间的枢纽,三段式的转角阶梯,为人们提供了更加丰富的视角和参与感,徜徉其中,更像是一个游园的过程。

走道
行走于水墨之中,端景的月洞门仿佛不仅是空间的结束,而是另一个延伸空间的起始,两侧房门前的羊皮灯与香炉装置,在灯光与香味的晕染中,空间的质感尽显。
03
禅修,明悟
“明月松间照,清泉石上流”
人生在世,和“自己”相处最多,打交道最多,但是往往悟不透“自己”。
以康养介入健康管理,更像是人与自己交流的过程。
SPA客房
与公共空间不同,房间的设计更强调舒适度、私密性和”去装饰化“。极简纯粹的空间配合专业的灯光设计,让消费者真正放松并沉浸其中。
04
茶水洗心,心如明镜
“茶亦醉人何必酒,书能香我无须花。”
身心在沐足、采耳、SPA养生中得到放松,是康养的一部分,却并非全部。
沐足设计从房间回到一楼,迎接客人的是雅致的茗茶轻食空间。
寻位落座,屏风外的古琴表演,仿佛带着我们穿梭时空,体味古代画中的场景。

时分24节气,茶分百味,在陆羽故里,遵循《茶经》至理,品味各地名山名茶,配上身后明厨明档端出来香喷喷的轻食,笑论人间百味,这不仅是在简单地休息或补充能量,而是以地域文化为背景,通过感官体验和社交,帮助客人以更饱满的精神状态,继续回归到日常生活中。
从度假,到禅修;
从禅修,到明悟人生;
当下的酒店,不再只是短暂休息后再出发的地方,入住过程中的服务体验变得越来越重要;
疫情后,人们越来越深刻的审视自身的康养需求,让许多本身拥有健康管理介入能力的业态,拥有了跨界进军康养酒店从而提升溢价能力的可能。
一切皆有可能!思瀚酒店设计在探索与实践,也希望有机会与更多专业人士深度交流,如果您有想法,可在下方留言参与讨论!
诗与远方,就在身边。

更多沐足设计请关注聚设汇装修平台: