欢迎光临聚设汇,装修找设计就上聚设汇!
   咨询电话:15602987227
登录    注册
聚设汇
首页 > 商业 > 港中旅杭州中旅归锦府售楼处

港中旅杭州中旅归锦府售楼处

装修公司

水 /

结构、材质、声音与空气,细腻地共处于空间韵律中

水的蓝色印象,在光波振动下,水蓝、湖蓝、水绿与灰色微妙结合

装修公司

装修公司

光影与原生材料的完美融合

从视觉、听觉、嗅觉、触觉,打造一场颇具现代意义的沉浸式体验

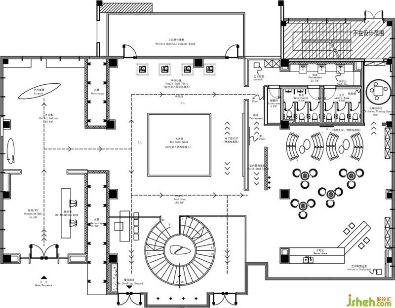
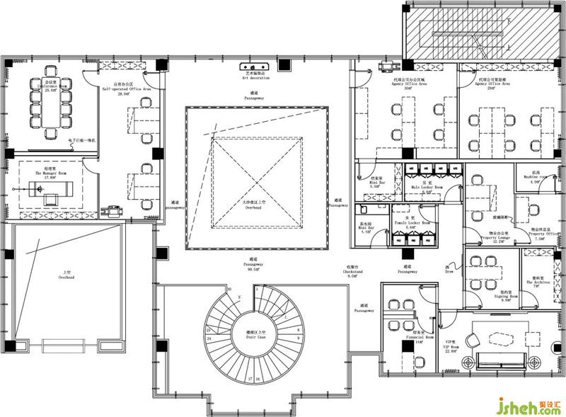
项目平面图

一层

二层

树美(深圳)设计有限公司

设计收费:500 元/平             

擅长类型: 样板房、售楼处、办公室

在线咨询

扫描二维码关注我们的微信

深圳市聚设汇文化传媒有限公司
主编热线:15602987227
总部:深圳市罗湖区梨园路128号宝能汽车大楼416单元
佛山、东莞、成都、重庆、福州、厦门、南昌、武汉、
杭州、苏州、温州、郑州、长春、沈阳、贵阳、柳州、
哈尔滨、九江等城市设立办事处
© 2017-2021 Jsheh.com 版权所有 粤ICP备17079093号
展开
回到顶部