项目名称:弘阳开封燕澜府售楼处
Project Name: Hongyang Kaifeng Yanfu House Sales Office
项目地址:河南 开封
Project Address: Kaifeng, Henan
开发商:弘阳集团
Developer: Hongyang Group
项目面积:494㎡
Project area: 494㎡
硬装设计:树美设计二中心 硬装二部
Hard design: Sumay Design
完工时间:2018年10月
Completion time: October 2018
项目摄影:帝成传媒·大白哥
Project Photography: Dicheng Media. Mr.BigWhite
弘阳.燕澜府,匠心之作
驾驭万象缤纷,尊享格调生活
CBD核心区域,是城市发展的主流方向
高端配套环伺周边,进退之间,繁华尽藏
Hongyang. Yanyan House, ingenuity
Driving a colorful life and enjoying the style of life
The core area of CBD is the mainstream direction of urban development
High-end supporting ring around the perimeter, between the advance and retreat, full of prosperity
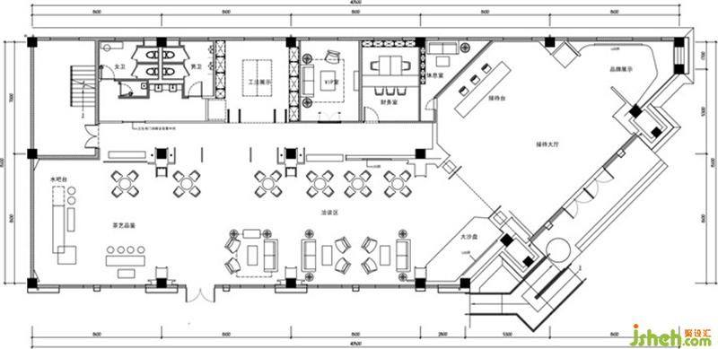
▲平面布置图|Layout plan
匠心精耕,国之精华、世之潮流巧妙融合
门、厅、堂、庭、园、道6重礼序空间
营造符合时代气息的风格......
Ingenuity, the essence of the country, the trend of the world
Doors, halls, halls, courts, gardens, roads
Create a style that is consistent with the times...
艾默生曾说:
眼睛是最好的艺术家,光是最好的画家......
Emerson once said: "Eye is the best artist, just the best painter...
传统 | 是一个人的独白......
Tradition | Is a person's monologue.
“明月松间照,清泉石上流。”
正如王维诗中所写:
“照”与“流”,“光”与“影”,
一上一下,一静一动,静中有动,动中有静
"Mingyue pines shine, the springs flow up."
As written in Wang Weishi:
"Photo" and "Flow", "Light" and "Shadow",
One up, one quiet and one move, there is movement in the stillness, there is silence in the movement
此种禅意,仿佛大自然的脉搏在跳动
自然之美与心境的美完全融为一体
创造出如水境般不可凑泊的纯美意境
This kind of Zen, as if the pulse of nature is beating
The beauty of nature and the beauty of the mood are fully integrated
Create a purely artistic conception that cannot be undone as a water

