设计公司:武汉美构设计顾问有限公司
项目面积:3000m²
项目造价:1000万
项目地址:河南 郑州
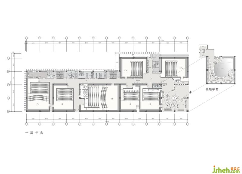
本项目位于一座商业广场的三楼,是奥斯卡院线在郑州的旗舰店,拥有一个两层空高的前厅,介于规则与混乱之间的弧形展示墙背后隐藏着一个夹层结构,一楼是书吧与休息区,二楼是一个电影主题餐吧。圆形前厅地面的黑白格子铺装看似简单,却是在古罗马时期就已存在的铺装纹样,它们与弧形景墙随机的冲撞,迸发奇幻的视觉火花。圆形中岛上方蒸汽时代的钟塔与路标,以及顶端缓慢旋转的小金人,彷如古老的中央车站,由此开启一段两小时的时空之旅。
装修公司

装修公司



