

蠢蠢欲动的心,终得挣脱束缚,在专属的私人场所,肆意妄为。家装设计任性的搭配,不羁的造型,想象的空间一点点被实现。
The restless heart finally has to break free from the shackles and act recklessly in an exclusive private place. Willful collocation, uninhibited modeling and imaginary space are realized little by little.
主卫生间
—
Main toilet
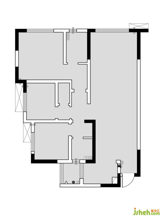
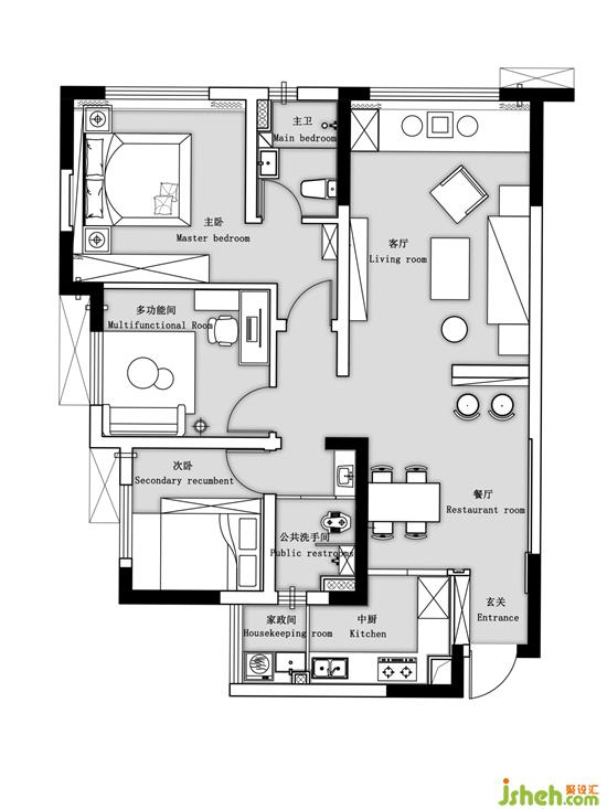
原始结构图&平面设计图
—
House type&Plane design
▲原始结构图
▲平面布局图
更多家装设计请关注聚设汇装修平台: