父母房
—
Parents' room
卫生间1
—
Toilet1
主卧
—
Master bedroom

卧室色调与主色调一致,木色浅色间错使用。家装设计以柜体一色的木饰面作为床头背景墙的底色,既舒展了空间的视觉效果,又突出了卧室的功能性,显得柔暖舒适。家装设计
Bedroom tone and main tone consistent, wood color light color between the wrong use. The wood veneer of the cabinet body is used as the background color of the bedside background wall, which not only stretches the visual effect of the space, but also highlights the functionality of the bedroom, making it soft, warm and comfortable.
卫生间2
—
Toilet2
卫生间是整个家居中空间最小、使用率高的区域。家装设计采用主体白色亮面瓷砖搭配,增强采光效果,提升空间舒适感。
Toilet is the smallest space and high utilization area in the whole household. The main body of the white bright tile collocation, enhance the lighting effect, enhance the comfort of the space.
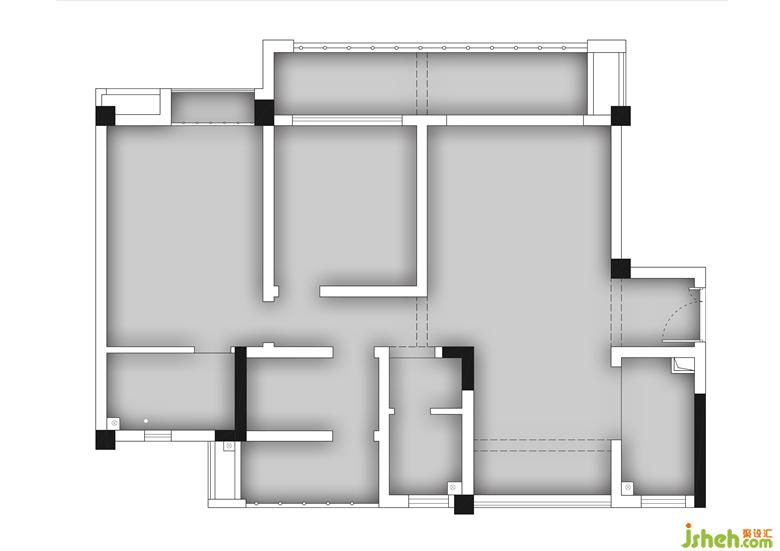
原始结构图&平面设计图
—
House type&Plane design

更多家装设计请关注聚设汇装修平台: