欢迎光临聚设汇,装修找设计就上聚设汇!
   咨询电话:15602987227
登录    注册
聚设汇
首页 > 家装 > 滟澜山 | 光映缤纷

滟澜山 | 光映缤纷

项目地点:桂林滟澜山

项目设计:广西杰特装饰工程有限公司

项目总造价:23W

项目面积:140平米

清晨,闹钟响了,起床,刷牙,洗脸,换上一件喜欢的外套,搭配黑色的磨砂皮鞋,像黎明起身的战士,走出家门,告诉自己:学会爱上这个兵荒马乱的世界......每个人都是自己世界的创造者,这个世界的背后有父母、孩子、伴侣,正因为他们,你希望为这个世界创造出更多更美好的东西

主卧-装修设计

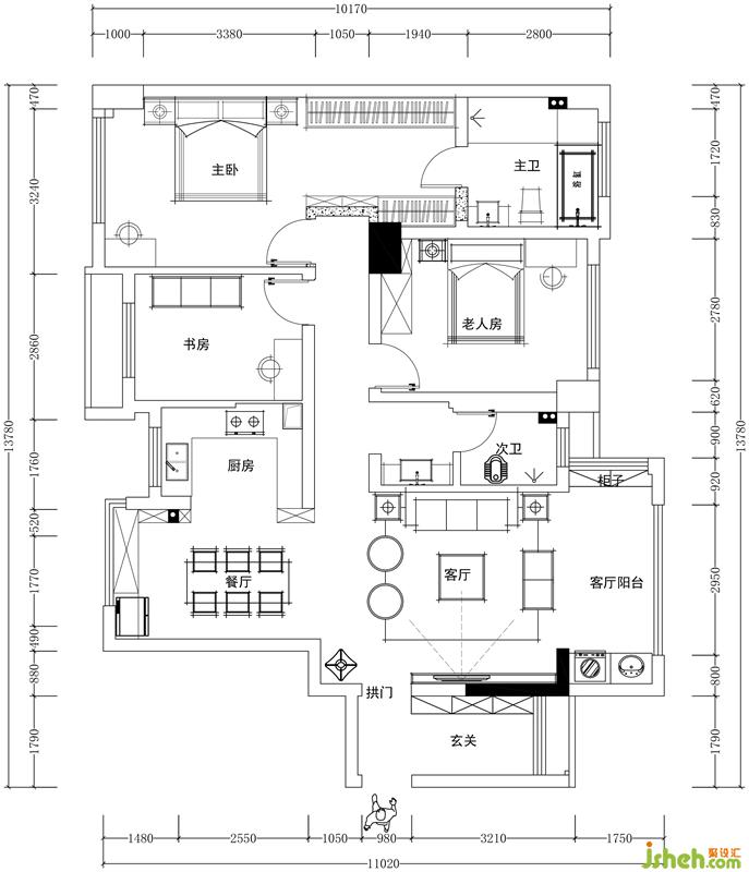
平面结构 -装修设计

更多装修设计请关注

设计收费:面议       

擅长类型: 现代,田园,欧式,古典,美式,混搭

在线咨询

扫描二维码关注我们的微信

深圳市聚设汇文化传媒有限公司
主编热线:15602987227
总部:深圳市罗湖区梨园路128号宝能汽车大楼416单元
佛山、东莞、成都、重庆、福州、厦门、南昌、武汉、
杭州、苏州、温州、郑州、长春、沈阳、贵阳、柳州、
哈尔滨、九江等城市设立办事处
© 2017-2021 Jsheh.com 版权所有 粤ICP备17079093号
展开
回到顶部