项目信息
设计团队:拾光悠然设计
团队简介:拾光悠然成立于2015年,实用主义者。我们致力于以实用性为主导的去风格化设计,专注于挖掘提升空间价值。
项目地址:四川,成都
项目面积:130㎡
项目类型:毛坯房
项目户型:1室2厅2位
项目费用:70w
项目摄影:独立空间摄影 李恒

机投桥的历史,最早可追溯到大石文化时期,在商朝时此地就开始了养蚕织布。到了东汉,这里成为了蜀锦的重要生产地。在历史长河中,机投一直是成都平原上著名的纺织业生产中心。
明曹学佺的《蜀中广记》记载:“游蜀记云:‘成都有九璧村,出美锦。岁充贡,宋朝岁输上供等锦帛,转运司给其费而府掌其事’。”这里提到的九璧村便位于古代的机投境内,其生产的“九璧锦”更是名动天下,广受赞誉。
清朝之初,在街的南头新修一座大桥,大桥建成后,一直未取名。时间久了,当地人习惯地将它叫成“街头桥”,后来讹传为“机投桥”。随着一朝一代战乱纷扰,以及人们的迁居,机投的织造业逐渐衰败,千年繁华已不复当年。
本次作品的地址,就在这拥有千年历史的机投桥,其中一隅。
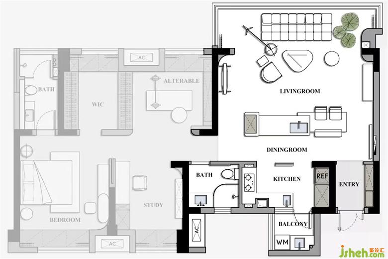
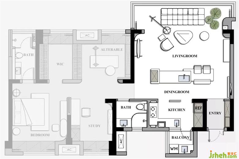
- 户型/设计思路
屋主是一位发热门诊的医生,在疫情期间曾几度赶赴外省支援。她喜欢旅行,喜欢烹饪,喜欢健身,喜欢把家整理得井井有条。对于风格与布局,没有特定的要求。她认为专业的事情,交给专业的人来规划更好。
130㎡的面积对于屋主虽然已经足够,但厨房面积很小,日常使用起来并不方便。并且除主卧以外的房间,面积都相对局促,空间整体封闭,无法展现房屋本身的优点。
于是成都家装设计师为屋主特意打造了,适合她的家:
❶. 屋主喜欢烹饪,但厨房面积很小,无法规划很多的功能,于是将餐厨的清洗等功能移到餐厅岛柜位置,为屋主获取更多可操作的空间。
❷. 目前绝大部分时间是屋主一个人居住,所以让房屋最大限度地迎合她的生活习惯与需求,于是化零为整,将套四房屋改为一居室空间。
❸. 屋主喜欢在家健身,单独的健身空间能够让她更为专注,于是将一间房间打造为她的专属健身区。
......

整个房屋划分为「社交」、「私密」两个区域,之所以如此划分明确,是因为在满足最基本的生活需求前提之下,设计师希望屋主获得更加便捷,有趣的生活体验。
而房屋整体形式的呈现,成都家装设计与这座城市,与机投桥这个地方的基因产生着紧密且微妙的关系。


●青瓦铺砌细节
入户地面采用川西坝子中常见的青瓦处理手法,成都家装设计堆叠出别致的肌理花纹,延续成都建筑特有的历史韵味。
通过入户沉降的方式将空间重组,一明一暗间,在这喧嚣城市之中,营造出了一个世外桃源般的惬意秘境。
现场定制的木门框,两侧的黑色饰条,连接嵌入式踢脚线。仿佛织锦交织的经线与纬线,勾勒出空间的基础边界。