Area / 81㎡
Layout / 2室1厅1卫
Type / 毛坯房
Price / 35w
Mode / 全案设计 + 施工服务
Design / © 拾光悠然设计
Photo / © 独立空间摄影师 邹锋翰
“独活也是一种尊重自己的生活态度”
● 本案常居者为1人3猫,空间围绕着屋主个人的喜好与生活方式和猫咪的好奇好动的习性而量身定制的,以达成人宠与空间互动和对话的状态。
● 光是屋主的灵魂,从北方来到南方定居工作的屋主,对阳光的热爱从未改变。优秀的采光使这套房子仿佛向阳而生,当光洒落进房间便是灵魂找到了归处。
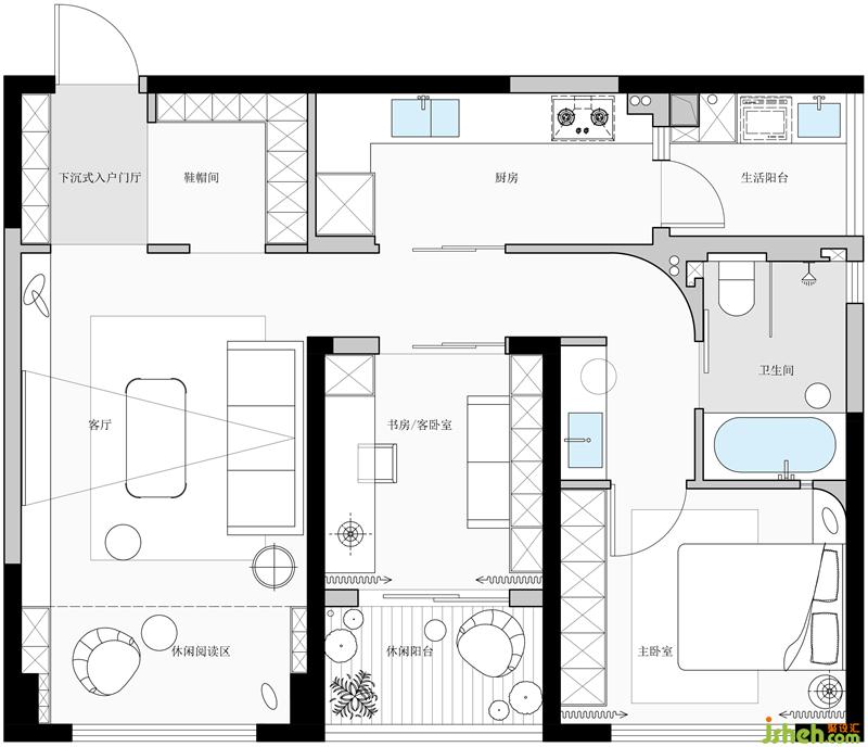
原始结构图
房屋的前身是一套作为出租性质的二手房,原始结构混乱,布局不合理,从而导致空间采光较差,这些房屋原本的缺点与屋主对光的喜爱背道而驰。
享受光合作用带来的愉悦
有必要的空间重组
抬高地面以便于地暖铺设,顺势形成了下沉式入户门厅。
拆除客厅与玄关的隔断,让自然光不留余地的洒进每个角落里。给休闲阳台当做放大的木盒,给屋主充足的空间去晒太阳。
将厨房与鞋帽间的隔断向左推动,扩大厨房使用空间,利用玻璃门的通透性,引光入室。


下沉式玄关配合嵌入式灯带,进屋可直接关门换鞋规避室外鞋带进室内,同时避免猫咪们溜出房门。
屋主的个人物品不多,因此基础的入户柜体收纳当季且日常的物品,而鞋帽间L型柜体为未来提前做好补充收纳。
入户添加一堵隔断与一盏入户灯,划分好入户与鞋帽间两个区域的同时为屋主铺垫好回家的氛围。
空间结构做好减法的同时适当的做加法,让空间更加人性化。



除了主卧,客厅便是屋主身心放松的另一居心地,入户的灯带延伸至阳台,为即将开启的下班快乐时光做好准备。
电视与投影并存,只为满足屋主的游戏与观影的小爱好。
电视大部分时间作为游戏显示屏使用,一场酣畅的游戏结束后,关掉客厅主灯,留下电视墙左侧灯与地台灯,放下幕布挑选一部佳片,宅家也要生活充满仪式感。
影片结束后收纳进极窄幕布盒里,亦不会让整个客厅显得突兀,两个场景在屋主的手里随心情自由切换。
