

Guest room in the design will do the pillar back processing, and corner glass to the title, so that the natural reflection into each corner of the room. The bed and bath crock are apart from the window only one step, pulled closer the distance between the person and nature more.


地下室拥有餐厅、会议区、厨房以及烘焙区,在墙体开出一个长条形窗扣,光线透过水的折射撒入室内,让空间变得更加明亮,开阔。
The basement has a dining room, a meeting area, a kitchen and a baking area, with a long window button on the wall. The light is reflected through the water, making the space more bright and open.



在这样一个极致的空间中,
与自然对话,尽情享受度假的乐趣。酒店设计
PLAN | 四层平面图
PLAN | 一层平面图
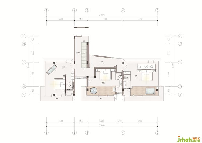
PLAN | 二层平面图
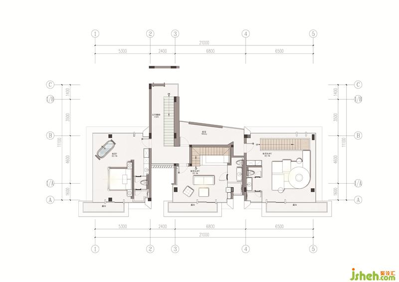
PLAN | 三层平面图
PLAN | 地下餐厅平面图