

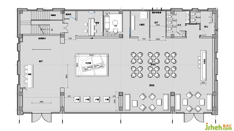
SUNS尚石设计在洽谈区将这一风格完整承传,宋瓷的艺术介入不仅是对空间的点缀,售楼处设计更是体现宋式美学跟生活紧密结合,深植对生活器物的讲究。无一不散发着平和淡然的气息。
宋仁宗时期达到了千古名臣才子之盛,期间的文学经典至今余音未泯,影响世人。
水吧区重现了这个群星璀璨的时代。聚焦和解读宋代文人“宋式生活美学”的内涵。“焚香、点茶、插花、挂画”将日常生活提升至艺术的境界。
儿童区是孩子生活与传统文化连接点,售楼处设计墙体延伸宋代建筑群的形态,收纳国学经典读物和玩具。
让孩子在娱乐和学习的空间释放,构造简单自由的快乐。
透过“宋式美学”,我们能够看到宋代的社会生活、风土人情、风尚嗜好、个体的旨趣、性灵和风雅。
今天,当我们在中奥·天悦府售楼处——SUNS尚石设计延伸结合的当代宋式诗意栖居,售楼处设计共同感慨当代人日益浮躁和疲惫,自然而然会亟待渴求一种优雅舒缓、熨帖人心的生活方式。
